Vuokrataan toimistotilat - Helsinki
Uudenmaankatu 16-20, Punavuori, keskusta, 00120 Helsinki #10815742
Rakennuksen kuvaus:
Punavuoren Dekin täysin uudistetut toimitilat ydinkeskustassa, Annankadun ja Uudenmaankadun kulmassa. Talo on täysin saneerattu 2019-2021 ja sen avarissa, valoisissa tiloissa on tehokas pohjaratkaisu sekä nykyaikainen tilatekniikka. Suuri kerroskoko mahdollistaa hyvin joustavan toteutuksen aina 200 työpisteeseen per kerros. Kerrokset ovat myös jaettavissa tilatarpeen mukaan. Talon erikoisuutena keskustassa iso oma parkkihalli. Lisäksi pyöräparkki ja yhteissuihkutilat, sekä hyvät palvelut alueella. Kampin metrolle vain 8 min kävelymatka.
Tilan kuvaus:
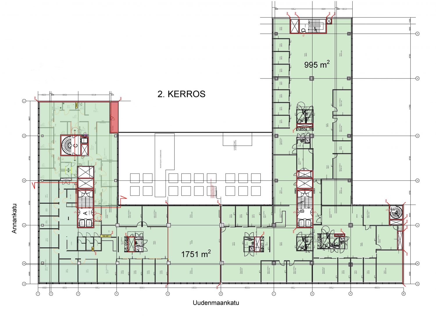
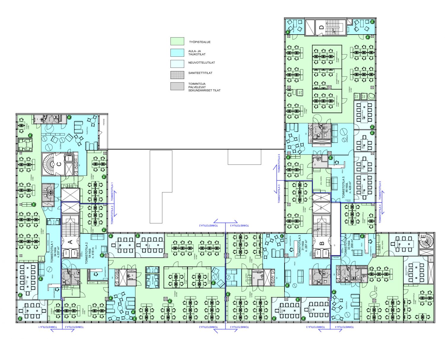
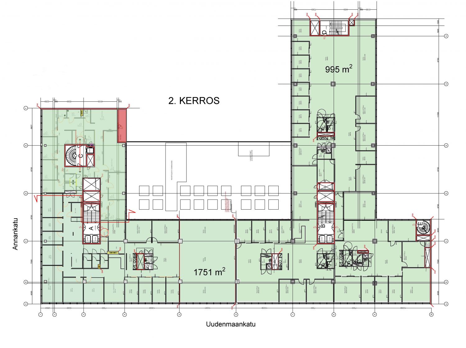
Vuokrattavana erilaisia tilakokonaisuuksia, esimerkiksi vaksi päällekkäistä toimistokerrosta, jotka halutessa voi yhdistää sisäportailla yhteinäiseksi kokonaisuudeksi. Vapaana kerrokset 2. ja 3, joista toinen kerros on kokonaan vuokrattavissa, kooltaan 1751m² ja kolmannessa kerroksessa on 1536m² vuokrattavaa tilaa. Toisen kerroksen yhteydessä on sisäpihan puolella terassimahdollisuus sekä oma parveke.
Kerros: 2-3
