Vuokrataan toimistotilat - Helsinki
Uudenmaankatu 16-20, Punavuori, keskusta, 00120 Helsinki #10815739
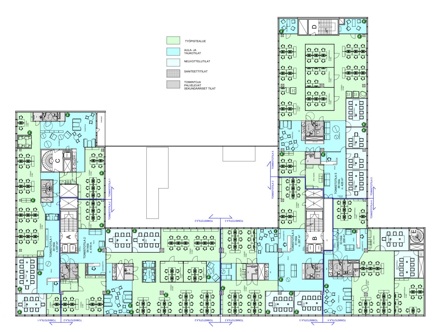
Rakennuksen kuvaus:
Punavuoren Dekin täysin uudistetut toimitilat ydinkeskustassa, Annankadun ja Uudenmaankadun kulmassa. Talo on täysin saneerattu 2019-2021 ja sen avarissa, valoisissa tiloissa on tehokas pohjaratkaisu sekä nykyaikainen tilatekniikka. Suuri kerroskoko mahdollistaa hyvin joustavan toteutuksen aina 200 työpisteeseen per kerros. Kerrokset ovat myös jaettavissa tilatarpeen mukaan. Talon erikoisuutena keskustassa iso oma parkkihalli. Lisäksi pyöräparkki ja yhteissuihkutilat, sekä hyvät palvelut alueella. Kampin metrolle vain 8 min kävelymatka.
Tilan kuvaus:
Täysin saanerattu talo, jossa tilat rakennetaan yrityksellesi betonilta. Pohja on joustava ja mahdollistaa kaikki variaatiot täydestä koppikonttorista avotilaan, ja kohteelle räätälöidään yrityksen toimintaa parhaiten palveleva toimisto. Vuokrattavana erilaisia tilakokonaisuuksia ja mahdollista esimerkiksi vuokrata noin 756m² kokoinen toimisto talon toisesta kerroksesta. Tila sijaitsee talon Uudenmaankadun ja Annankadun puoleisessa kulmassa. 756m² tila talon A-osassa, joka valmistui saneerauksesta 2021. Tilat ovat muuttovalmiit vuokralaismuutoksien puitteissa.
Kerros: 2
