Vuokrataan toimistotilat - Helsinki
Arabiankatu 12, Arabia, 00560 Helsinki #10815733
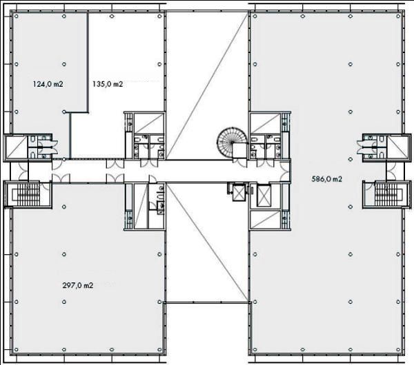
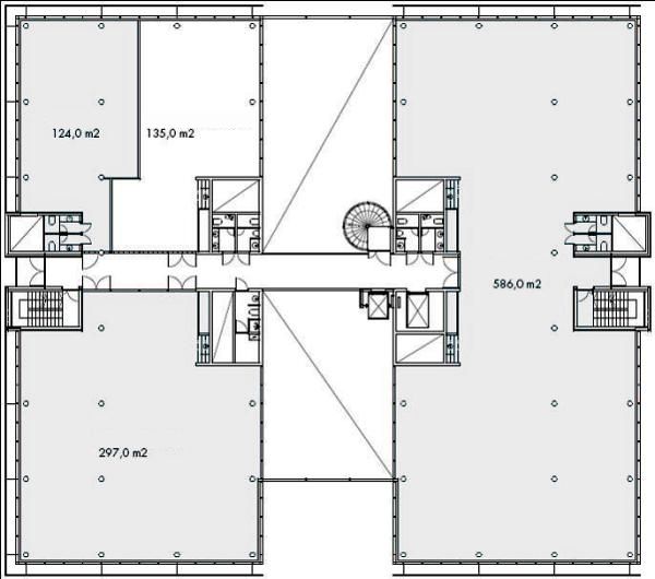
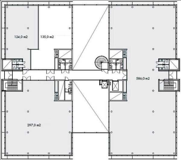
Rakennuksen kuvaus:
Arabianportaali sijaitsee meren rannalla Arabianrannassa ja on rakennettu vuonna 2002.
Talon modernit ja tehokkaat toimistotilat ovat joustavia ja helposti muunneltavia, pääosin tehokasta avotoimistoa. Business park tarjoaa käyttäjilleen kattavan palvelukonseptin ja rakennuksessa toimii laadukas ravintola joka tarjoaa lounas-, kahvila- ja cateringpalvelut. Lisäksi vuokrattavissa kabinetteja ja koulutustiloja. Tyylikäs aula vastaanottaa vieraat. Etäisyys vain 15 minuuttia Helsingin ydinkeskustasta. Autopaikkoja vuokrattavissa viereisestä Arabian Parkin pysäköintilaitoksesta, josta on katosyhteys Portaaliin.
Tilan kuvaus:
Portaali Business Park on suunniteltu nykyaikaista työympäristöä arvostaville yrityksille, joille työntekijöiden viihtyvyys on tärkeää. Aula-, ravintola-, kokous- ja toimistopalvelut kuuluvat lähtökohtaisesti modernin business parkin palveluihin. Palveluja kehitetään niin laadullisesti kuin määrällisesti yritysten tarpeiden pohjalta. Jokaisessa kerroksessa on muuntuvaa ja joustavaa toimitilaa, jossa rajoittavat kiinteät rakenteet on minimoitu. Tilat on helposti jaettavissa työhuoneisiin, soluyksiköihin, neuvottelu- ja arkistotiloihin sekä avoimeen työtilaan.
Kerros: 3
