Vuokrataan toimistotilat - Helsinki
Elimäenkatu 9, Vallila, 00510 Helsinki #10815717
Rakennuksen kuvaus:
Kravattitehdas koostuu kahdesta rakennuksesta, joista Elimäenkatu 9 on entinen teollisuusrakennus vuodelta 1929. Keskellä Vallilaa sijaitseva kohde on nykyisin toimistokäytössä ja tarjoaa trendikästä industriaalitilaa modernein ominaisuuksin. Kravattitehdas on tyylikäs ja särmikäs toimistotalo suotuisalla hinta-laatusuhteella. Yhteistiloja on uudistettu 2018-2019 talon ilmeen mukaisesti. Talossa on oma ravintola, kokoushuoneita, auditorio, suihku- sekä pukuhuonetilat sekä parkkihalli.
Tilan kuvaus:
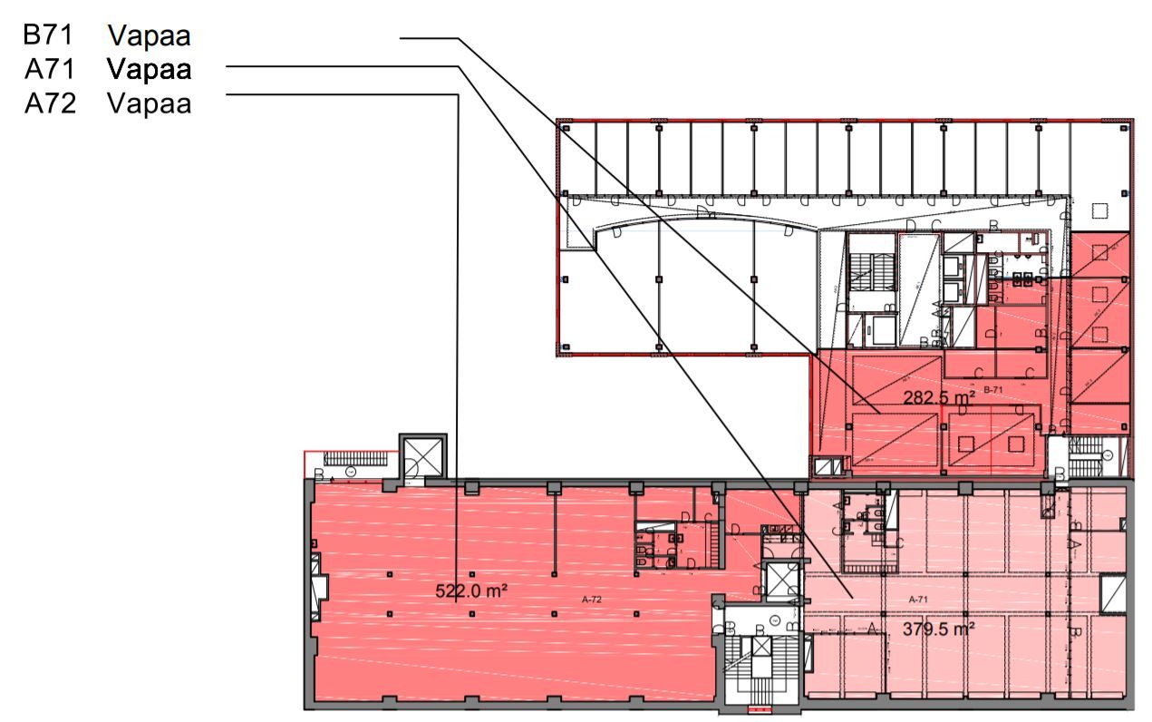
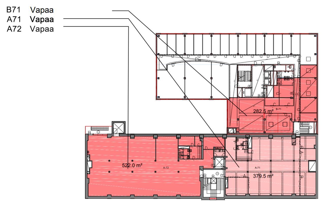
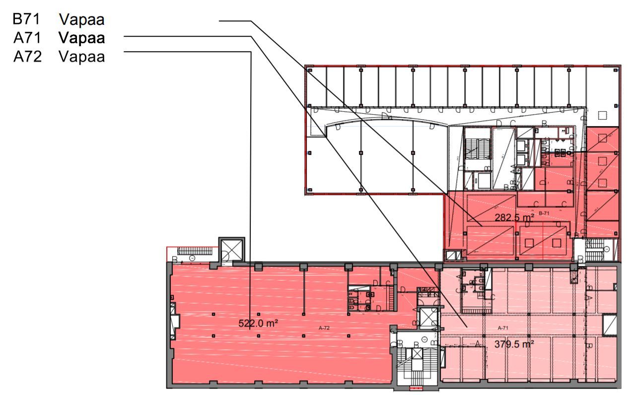
Modernisoitua toimitilaa vanhassa Kravattitehtaassa, joka on vastikään uudistettu talolle ominaista 30-luvun henkeä kunnioittaen. Elimäenkatu 9:n toimistoissa on trendikästä industriaalihenkeä ja tehdastunnelmaa. Kyseinen 525m² vapaa tila voidaan jakaa vuokrattavana olevasta 7. kerroksesta pohjakuvan osoittamin tavoin. Tilasta saa erityisen avaran avotoimiston ja monitilaympäristön.
Kerros: 7
