Vuokrataan toimistotilat - Espoo
Sinikalliontie 5, Mankkaa, 02630 Espoo #10815701
Rakennuksen kuvaus:
Sinikalliontie 5 on toiminnallisesti ja taloudellisesti tehokas kiinteistö. Kiinteistö sijaitsee hyvien liikenneyhteyksien varrella Turunväylän ja Kehä II:n
välittömässä läheisyydessä. Lännestä tuleva välttää keskustan ruuhkan. Hyvät pysäköintimahdollisuudet, yhteensä 101 autopaikkaa.
Tilat ovat hyvässä kunnossa, käyttäjämuutokset mahdollisia. Kiinteistö tarjoaa avotilaa, huonetoimistoa ja kombiratkaisuja käyttäjän tarpeen mukaan.
Tilan kuvaus:
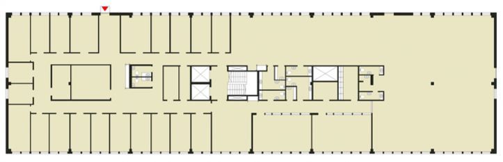
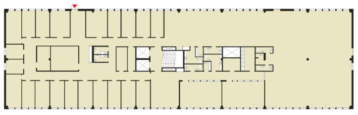
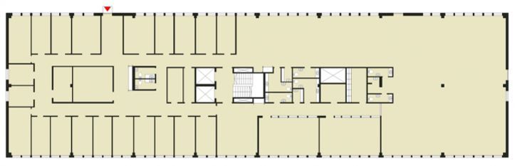
Vapaana koko toimistotalo. Noin 907m² kerrokset koostuvat avotilasta ja erikokoisista työhuoneista. Huoneiden väliset seinät ovat kevyitä väliseiniä, joten tilat ovat erittäin joustavia. Kerrokset ovat erittäin helposti jaettavissa myös pienemmiksi toimitilakokonaisuuksiksi.
Kerros: 1-4
