Vuokrataan toimistotilat - Helsinki
Eteläesplanadi 22, Keskusta, 00130 Helsinki #10815696
Rakennuksen kuvaus:
Historiallinen Bensowin talo sijaitsee kauniilla paikalla Esplanadin puiston laidalla. Kiinteistöä ympäröivät Helsingin tasokkaat ravintolat ja kattavat palvelut. Bensowin talo on rakennettu 1940 ja nykyisin talo on täysin modernissa liike- ja toimistokäytössä. Rakennus tarjoaa tasokasta, muokattavaa toimistoa. Talossa on suihkut ja pukuhuoneet sekä siistit sisäänkäynnit. Jos tarvitset edustavan osoitteen ja silti toimivat tilat, tässä on ratkaisu!
Tilan kuvaus:
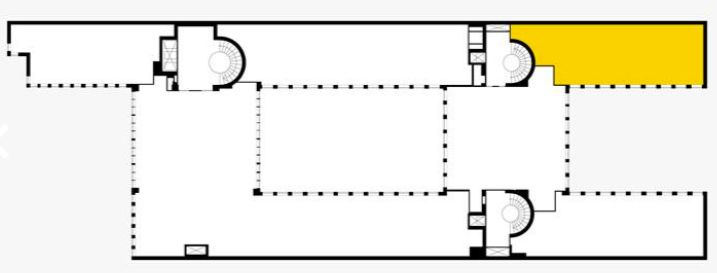
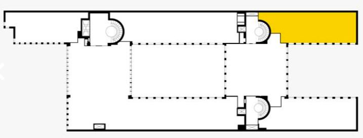
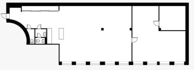
Siisti ja valoisa toimisto Helsingin keskustan parhailla paikoilla. Tilassa sekä avotilaa että muutama työhuone ja kaksi WC:tä.
Kerros: 4
Osoite
Eteläesplanadi 22, 00130 Helsinki
Tilatyyppi
Toimistotilaa
165 m2
Vapautuu
Heti vapaa
Ota yhteyttä
Pyydä lisätietoa
