Vuokrataan toimistotilat - Espoo
Lautamiehentie 3, Muurala, 02770 Espoo #10815681
Rakennuksen kuvaus:
Kehä III:n ja Turun moottoritien läheisyydessä sijaitseva suuri kiinteistökokonaisuus. Kiinteistössä on liiketilaa, merkittävä määrä varastotilaa, sekä runsaasti toimistotilaa. Rakennuksen ympärillä on suuri autopaikoitusalue.
Kiinteistön pääaulassa on vastaanottopalvelut, kokoustiloja, sekä suuri ravintolatila.
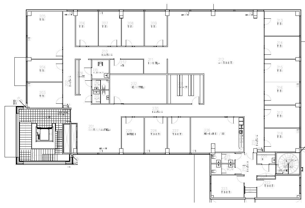
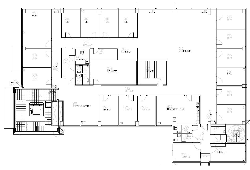
Tilan kuvaus:
Vuonna 2012 rakennettu laajennusosa, jossa on 2. kerroksen toimistotila 675 m2.
Tilassa on runsaasti huoneita, myös avotilaa sekä neuvottelutiloja, keittiö taukotiloineen. Erillinen jäähdytys serveritilassa. Tiloissa on jäähdytys ja moderni toimistotekniikka. Pihalla lämpötolpilla varustetut autopaikat. Kuvassa kalustusehdotus.
Kerros: 2
