Vuokrataan toimistotilat - Helsinki
Hämeentie 15, Sörnäinen, 00500 Helsinki #10815675
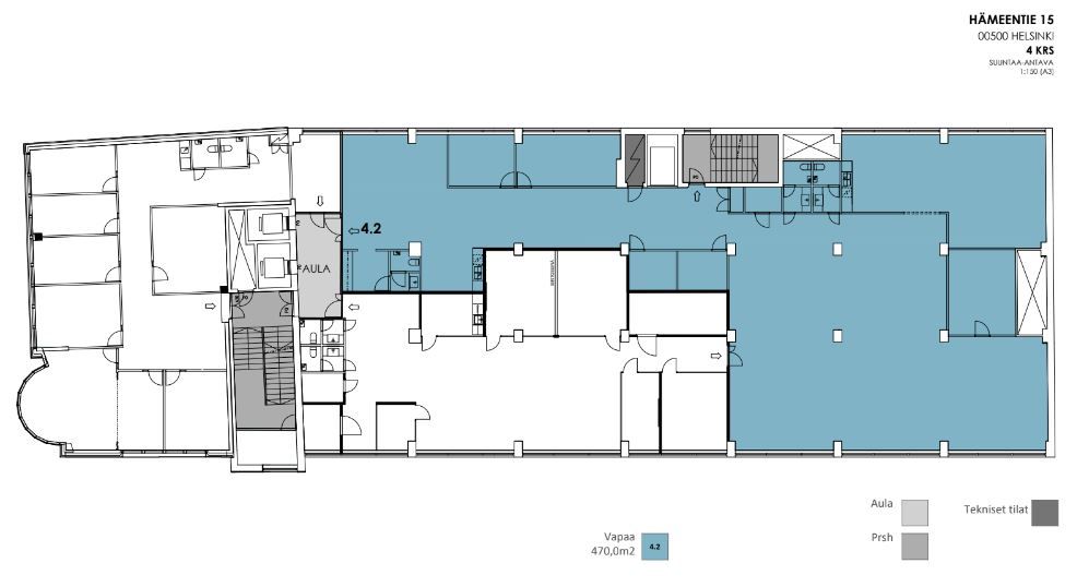
Rakennuksen kuvaus:
Sörnäisissä erittäin hyvien kulkuyhteyksien päässä sijaitseva toimistorakennus, jonka peruskorjaus aloitettiin vuonna 2016. Remontin yhteydessä sisätilojen lisäksi uudistettiin talon julkisivu ja sisäänkäynti. Sörnäisten alue tarjoaa vuokralaisille kattavan palveluvalikoiman ja liikkuminen on helppoa, sillä metroasema sekä ratikkalinjat palvelevat työmatkalaisia. Henkilöautoileville kiinteistössä on parkkihalli. Lisäksi talossa palvelee 8. kerroksen saunatilat ja kellarissa suihku- ja pukuhuonetilat. Katutasossa on ravintola.
Tilan kuvaus:
Vapaan vuokrattavaksi hyvää, toimivaa toimistotilaa, joka muokataan tarvittaessa uuden käyttäjän tarpeiden mukaan. Tila on nykymuodossaan jaettu eri kokoisiin työtiloihin.
Kerros: 4
