Vuokrataan toimistotilat - Helsinki
Tukkutorinkuja 5, Kalasatama, 00580 Helsinki #10815663
Rakennuksen kuvaus:
Ainutlaatuinen Kalasataman Kampus on huippumoderni ja tekniikaltaan edistyksellinen, mutta tunnelmaltaan lämmin ja viihtyisä toimistotalo. kohteessa on laadukkaat ja harmoniset pintamateriaalit, lattiasta kattoon ulottuvat ikkunat ja lähes kolmen metrin huonekorkeus. Palveluihin lukeutuu aula, ravintola, neuvottelutilat, pyöräparkki, suihkut ja parkkihalli. Vetovoimaisen Kalasataman keskiössä sijaitsevasta toimistotalosta on vain muutaman minuutin kävely metroyhteyksille ja Kauppakeskus Rediin.
Tilan kuvaus:
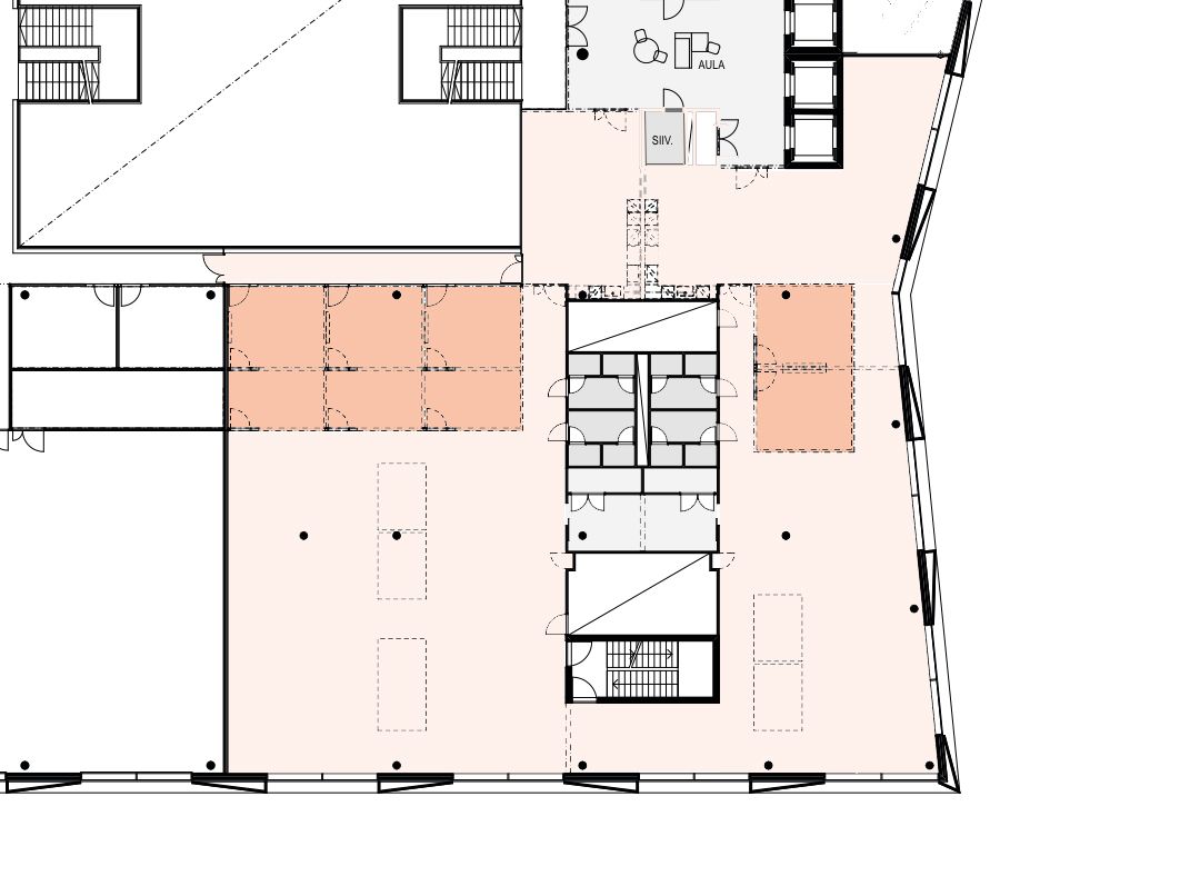
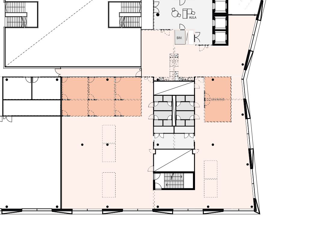
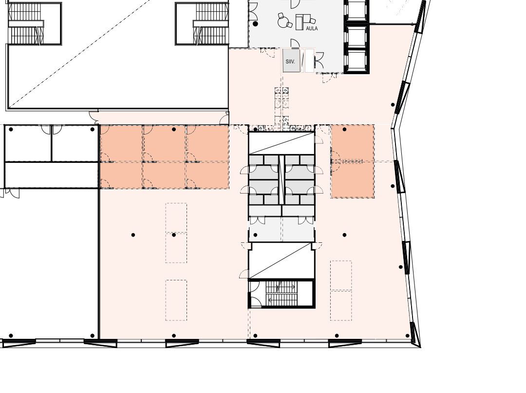
Vuokrattavana avaraa ja erittäin modernia toimitilaa uudiskohteen kuudennessa kerroksessa merinäköaloin. Mahdollisuus räätälöidä vuokralaisen toiveiden mukainen avotoimisto tehokkaasti käytettävissä olevaan kerrospohjaan, joka takaa optimaalisen tilankäytön. Talon suuret ikkunat tuovat tiloihin runsaasti luonnonvaloa, lähes kolmen metrin huonekorkeus lisää avaruuden tunnetta ja nykyaikainen talotekniikka luo viihtyisät olosuhteet. Talon kerroksien toimistot kiertävät suurta valoatriumia, jolloin neuvottelutiloja on mahdollisuus rakentaa atriumin laidalle ja ikkunaseinät jättää avotilaksi.
Kalasataman Kampus uudiskohde on valmistunut ja tilat vuokrataan nyt! Oheiset valokuvat ovat valmistuneista tiloista ja osoittaa talon korkean laatutason. Kysy lisää: JLL 020 7619961.
Kerros: 6
