Vuokrataan toimistotilat - Helsinki
Sörnäisten rantatie 29, Sörnäinen, 00580 Helsinki #10815662
Rakennuksen kuvaus:
Kalasataman Kummeli on Sörnäisten Rantatien ja Vilhonvuorenkadun kulmassa sijaitseva kiinteistö, joka on uudistettu moderniksi toimistokohteeksi. Talossa on näyttävä sisääntulokerros, jossa aulapalvelu, vuokrattavia neuvotteluhuoneita ja tasokas lounasravintola, josta saa myös catering. Valoisat toimistotilat täyttävät vaativankin käyttäjän standardit. Kaikki Kalasataman ja Sörnäisten palvelut ovat lähellä, minkä lisäksi liikenneyhteydet ovat erinomaiset. Autoilijoille löytyy parkkipaikkoja omasta hallista.
Tilan kuvaus:
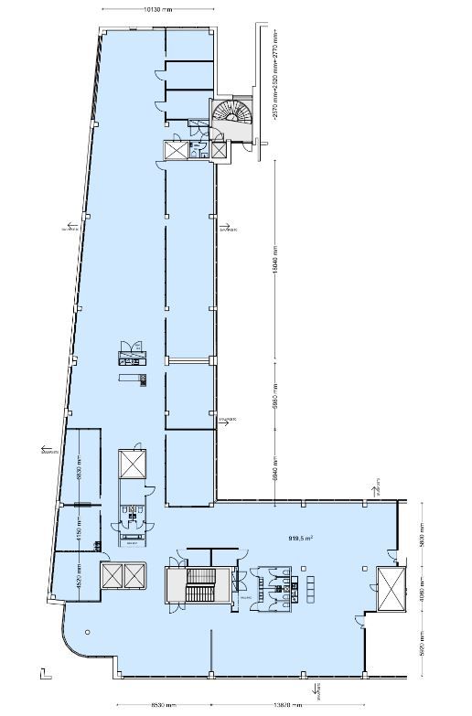
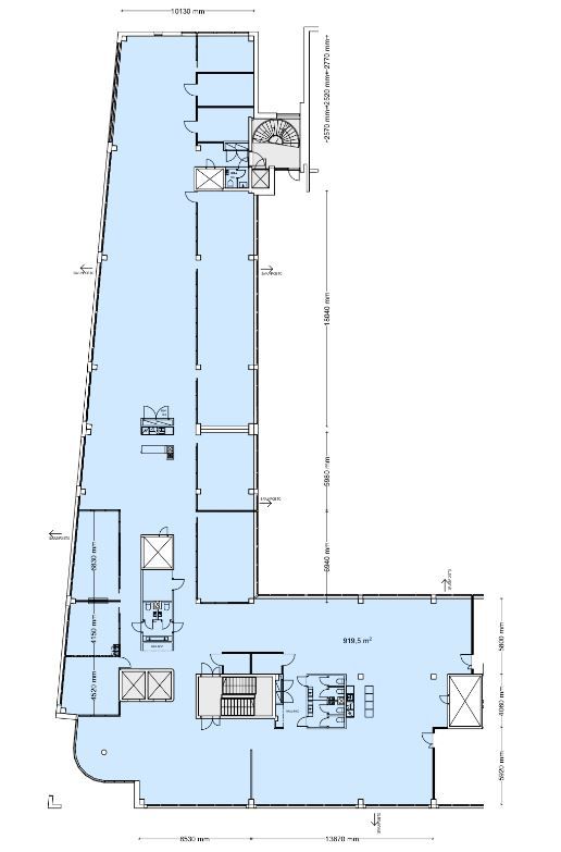
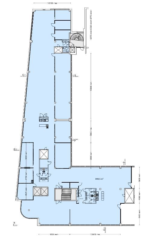
Kummeli Business Parkissa vapaana ylimmän kerroksen toimisto, yhteensä 920m² yhdessä tasossa. Korkeatasoinen tila sijoittuu pääosin kiinteistön Vilhonvuorenkadun puoleiseen siipeen, mutta osin myös Sörnäisten Rantatien puoleiseen osaan. Kyseessä on tasokasta avotoimistoa, jota voidaan muokata uuden käyttäjän tarpeen mukaan. Valoisassa toimistossa on toimiva pohja, joka mahdollistaa erilaiset tilankäytöt.
Tila on osa moderni ja yksilöllistä Business Parkia, jossa viihtyvyyteen panostetaan.
Kerros: 6
