Vuokrataan toimistotilat - Helsinki
Hämeentie 15, Sörnäinen, 00500 Helsinki #10815653
Rakennuksen kuvaus:
Sörnäisissä erittäin hyvien kulkuyhteyksien päässä sijaitseva toimistorakennus, jonka peruskorjaus aloitettiin vuonna 2016. Remontin yhteydessä sisätilojen lisäksi uudistettiin talon julkisivu ja sisäänkäynti. Sörnäisten alue tarjoaa vuokralaisille kattavan palveluvalikoiman ja liikkuminen on helppoa, sillä metroasema sekä ratikkalinjat palvelevat työmatkalaisia. Henkilöautoileville kiinteistössä on parkkihalli. Lisäksi talossa palvelee 8. kerroksen saunatilat ja kellarissa suihku- ja pukuhuonetilat. Katutasossa on ravintola.
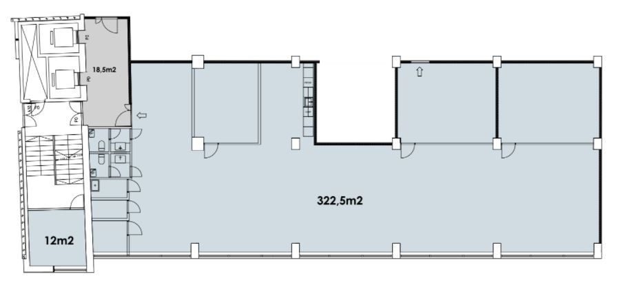
Tilan kuvaus:
Vapaana toimivaa ja siistiä toimistotilaa viidennestä kerroksesta. Tila on nykymuodossaan monitilatoimistoa ja sopii moneen liiketoimintaan. Tilankäyttöä on mahdollista räätälöidä uudelle käyttäjälle. Toimisto sijaitsee kiinteistön Lintulahdenkadun puoleisella sivulla.
Kerros: 5
