Vuokrataan toimistotilat - Helsinki
Kutomotie 16-18, Pitäjänmäki, 00380 Helsinki #10815652
Rakennuksen kuvaus:
Kutomo Business Park tarjoaa hyväkuntoisia ja joustavia toimistotiloja niin kooltaan kuin toimialaltaankin erilaisille yrityksille. Talossa on kattavat aula- ja toimistopalvelut sisältäen mm. posti-, vastaanotto- ja puhelinvaihdepalvelut, vuokrattavat neuvottelutilat, ravintola cateringpalveluilla sekä maksuttoman kuntosalin. Kohde sijaitsee kävelyetäisyydellä Valimon juna-asemalta. Henkilöautoileville kiinteistö tarjoaa runsaasti pysäköintitilaa.
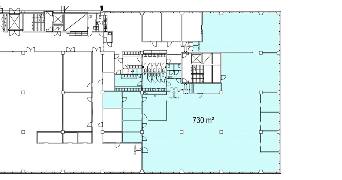
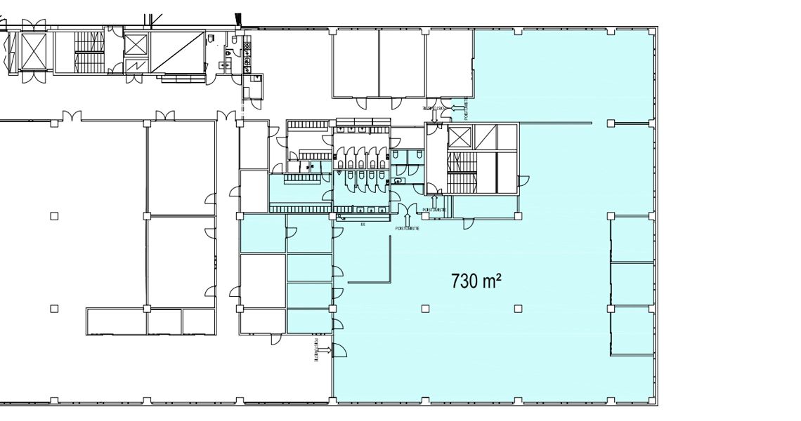
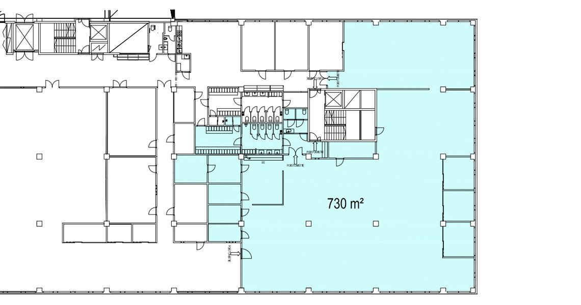
Tilan kuvaus:
Vapaana ilmastoitua toimistotilaa Kutomo Business Parkin neljännessä kerroksessa. Vuokrattava tila koostuu suurilta osin avotilasta ja lisäksi tilassa on muutama työhuone ja neuvottelutila.
Kerros: 4
