Vuokrataan toimistotilat - Helsinki
Huopalahdentie 24, Munkkivuori, 00350 Helsinki #10815651
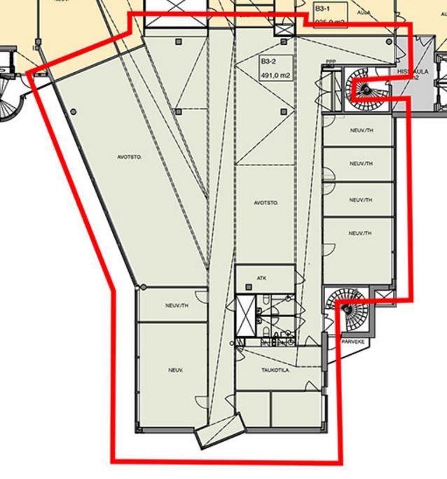
Rakennuksen kuvaus:
Huudi on hyvin hoidettu, uuden veroinen kiinteistö. Kiinteistössä on tarjolla kattavasti palveluja, kuten aula- ja postituspalvelut, henkilöstöravintola, kabinettitiloja sekä 70 hengen luentosali, kuntosali, sauna ja lisäksi hyvät henkilökunnan pysäköintitilat. Kohde sijaitsee loistavalla paikalla Munkkivuoressa aivan Turunväylän läheisyydessä ja bussilinjat kulkevat sekä keskustan suuntaan että Pääkaupunkiseudun poikittaislinjoina.
Tilan kuvaus:
Avaraa ja valoisaa toimistotilaa Munkkivuoren Business Centerissä. Vuokrattava tila sijaitsee kolmannessa kerroksessa ja tarjoaa vuokralaiselle viihtyisän ja ajanmukaisen toimiston, kattavineen palveluineen. Tila on joustavasti muokattavissa ja voidaan toteuttaa avo- kombi- tai huonekonttoriksi, vuokralaisen tarpeiden mukaan. Erinomainen sijainti, näkyvällä paikalla Huopalahdentien varrella. Pihatasanteen paikoitusalueelta autopaikkoja.
Kerros: 3
