Vuokrataan toimistotilat - Helsinki
Malminkatu 28, Kamppi, keskusta, 00180 Helsinki #10815647
Rakennuksen kuvaus:
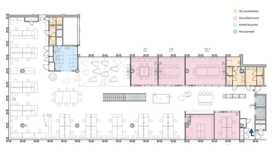
Vuonna 1977 valmistunut kiinteistö, joka sijaitsee erinomaisella paikalla aivan Kampin metroaseman sekä Kampin keskuksen välittömässä läheisyydessä. Kiinteistö on peruskorjattu 2005. Tilat ovat valoisaa ja muunneltavaa avotoimistoa.
Tilan kuvaus:
Valoisa ja laadukas 3. kerroksen toimistotila Kampissa, johon saa yhdistettyä sekä avotilaa että useita neuvottelutiloja. Keskeinen sijainti palveluiden äärellä ja silti todella rauhallinen paikka. Loistavat julkiset liikenneyhteydet ja parkkitiloja lähietäisyydellä.
Kerros: 3
Osoite
Malminkatu 28, 00180 Helsinki
Tilatyyppi
Toimistotilaa
525 m2
Vapautuu
Heti vapaa
Ota yhteyttä
Pyydä lisätietoa
