Vuokrataan toimistotilat - Espoo
Keilaranta 13, Keilaniemi, 02150 Espoo #10815645
Rakennuksen kuvaus:
HTC Waterfront on vuosien 2008 ja 2009 aikana valmistunut moderni, näyttävä merenrannan toimistokiinteistö, joka koostuu neljästä toimistotalosta. Talot ovat kytkeytyneet toisiinsa sisäisin kulkuyhteyksin tarjoten vuokralaisilleen yhteisölliset työtilat ja kattavat palvelut. Kolme HTC-rakennuksista, talot A-C ovat kuusikerroksisia noin 1000m² kerrospinta-alalla. Vuokralaisilla on käyttävissään lounasravintola, kokoustilat, aulapalvelu ja muut virkistystilat. Kellarissa ja piha-alueella on parkkitilaa.
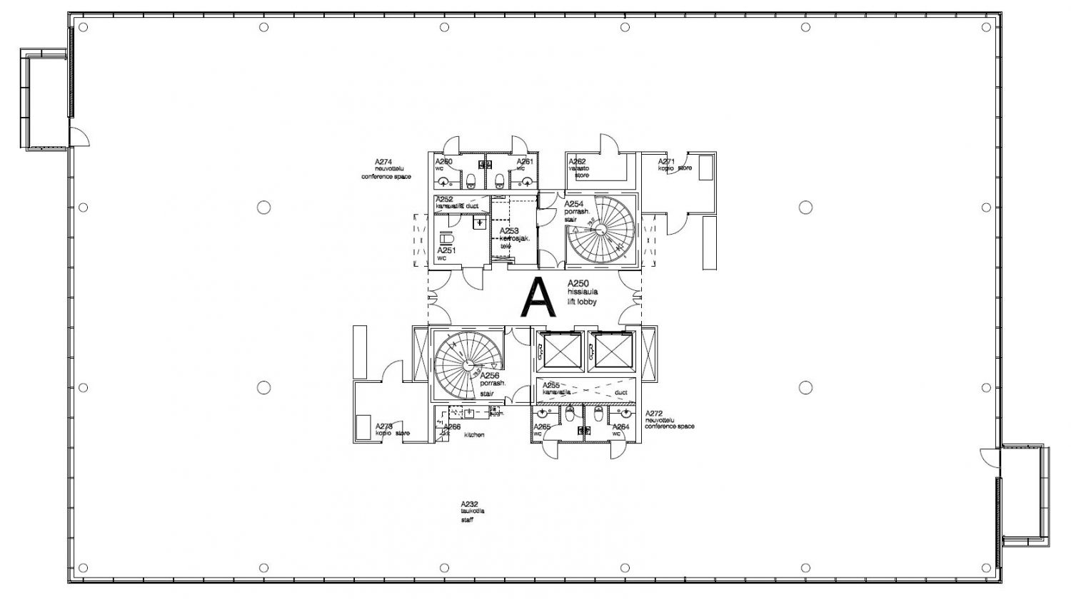
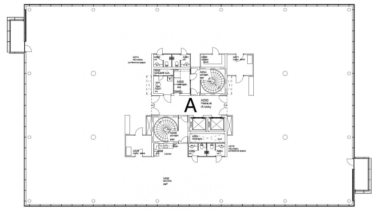
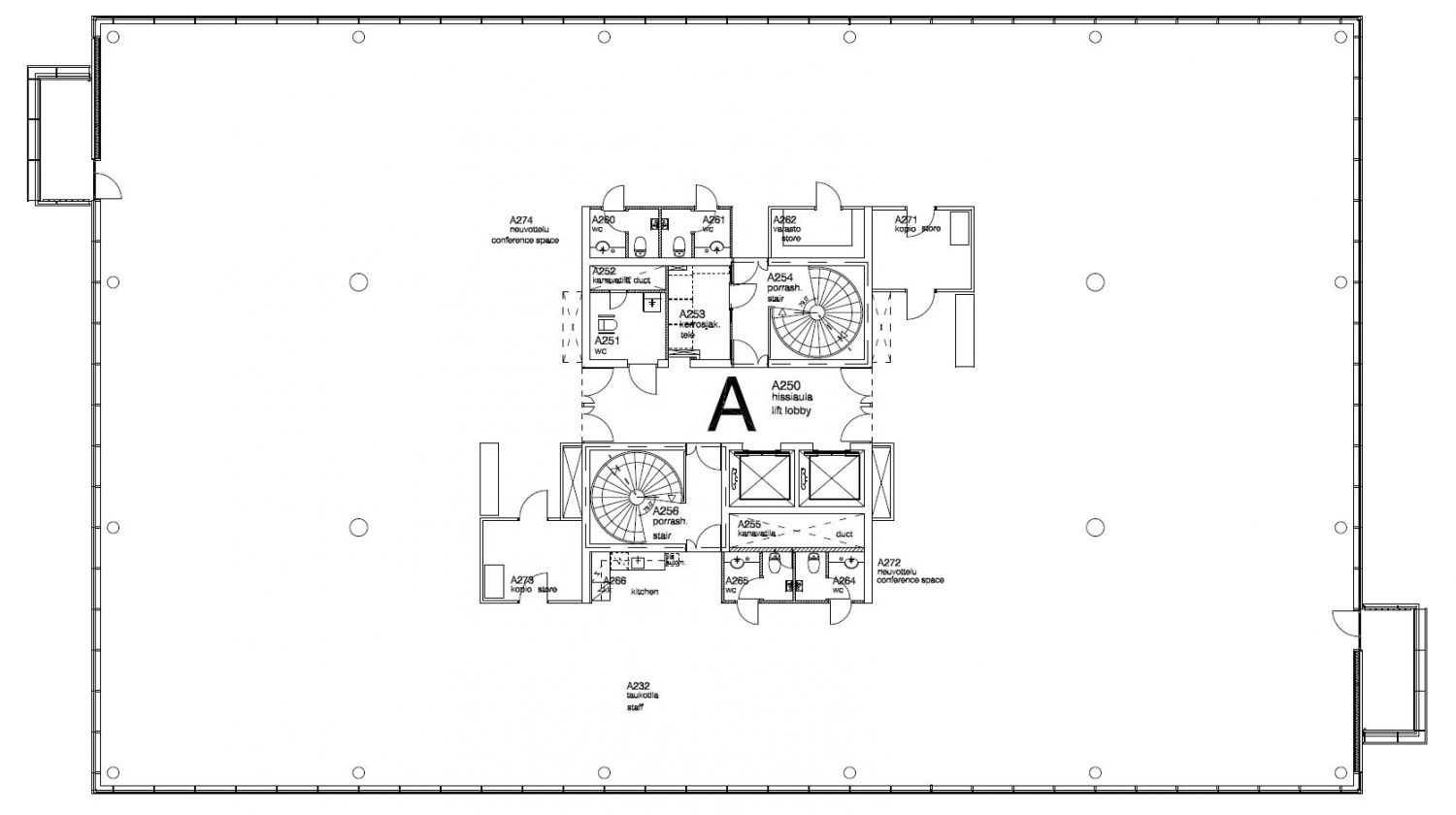
Tilan kuvaus:
Kuudennen kerroksen avaraa ja valoisaa toimistotilaa upeilla merimaisemilla! Mahdollisuus vuokrata kokonainen oma 6. kerros (965 m2). Helposti muunneltavissa vuokralaisen tarpeisiin. Parvekkeet tilan molemmissa päissä.
Kerros: 6
