Vuokrataan toimistotilat - Helsinki
Ratamestarinkatu 7, Itä-pasila, 00520 Helsinki #10815637
Rakennuksen kuvaus:
Moderni Lime Park on valmistunut v. 2003. Siinä on näyttävä nauhalasipintainen julkisivu ja tyylikäs vaaleaa ja puuta yhdistelevä sisätilojen yleisime. Kohteen sisätilat ovat suunniteltu joustaviksi ja vuokralaisten tarpeet huomioiden. Talon yläkerrassa on erittäin edustava sauna- ja kokoustila, minkä lisäksi katutason kerroksessa on vuokrattavia neuvottelutiloja. Kellarikerroksesta löytyy vuokrattavia autopaikkoja. Pasilan juna-asemalle on rakennukselta vain kävelymatka.
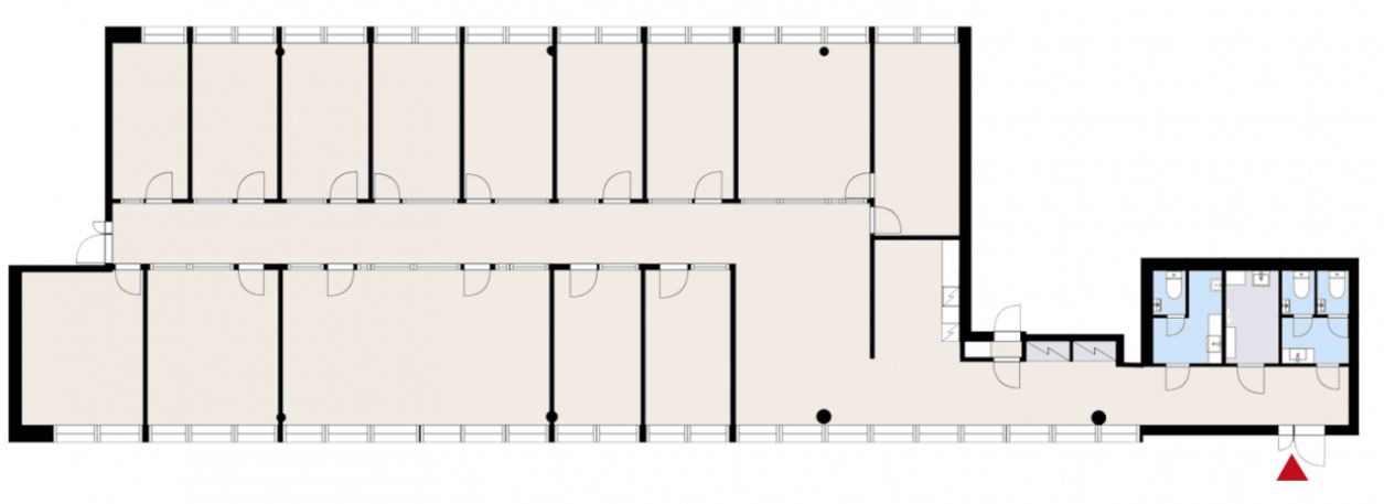
Tilan kuvaus:
Vuokrattavissa Lime Parkin ylimmässä kerroksessa sijaitseva 352 m² toimistotila, joka tarjoaa monipuoliset mahdollisuudet tilan muokkaamiseen vuokralaisen tarpeisiin sopivaksi. Tilassa on tällä hetkellä runsaasti työhuoneita sekä sosiaalitilat.
Kerros: 7
