Vuokrataan toimistotilat - Helsinki
Ruoholahdenkatu 8, Kamppi, keskusta, 00180 Helsinki #10815636
Rakennuksen kuvaus:
Ruoholahdenkatu 8 on vuosina 1956 ja 1964 rakennettu toimistokiinteistö Kampissa, joka peruskorjattiin täydellisesti vuonna 2005. Talo tarjoaa tehokkaat ja muokattavat toimistotilat, jotka muuntautuvat niin avokonttoriksi kuin huonetoimistoksikin. Rakennuksessa on koneellinen ilmanvaihto ja jäähdytys. Lisäksi kiinteistössä on ravintola, kuntosali ja varastotilaa. Kampin keskus ja metro on kivenheiton päässä. Henkilöautoileville kiinteistössä on 19 autohallipaikkaa ja 32 pihapaikkaa.
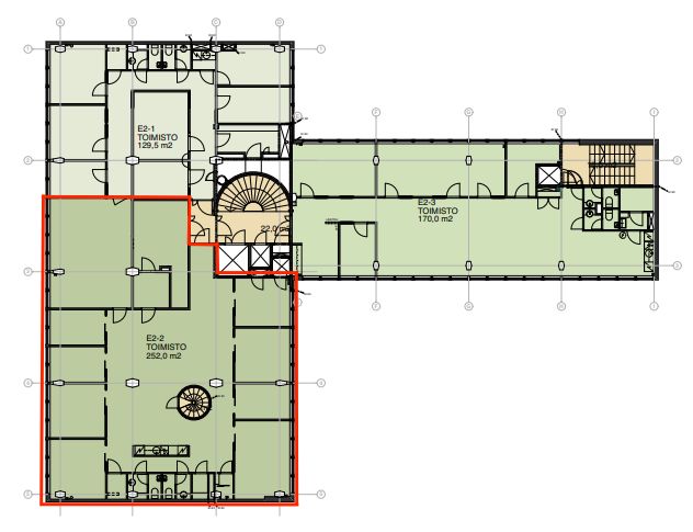
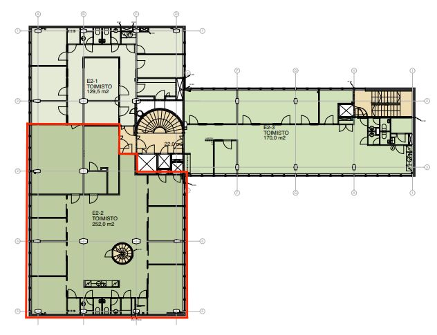
Tilan kuvaus:
Vuokrattavana toisen kerroksen jäähdytettyä tilaa, jopa helposti muunneltavissa. Tila on jaettu huoneisiin, mutta avattavissa avotilaksi.
Kerros: 2
