Vuokrataan toimistotilat - Helsinki
Itämerenkatu 1, Ruoholahti, keskusta, 00180 Helsinki #10815626
Rakennuksen kuvaus:
Ruoholahdessa sijaitseva vuonna 1998 valmistunut toimistotalo hyvien liikenneyhteyksien varrella. Lähimmälle metroasemalle on vain 350m. Kiinteistön modernilla tekniikalla varustetut tilat on helppo muokata käyttäjän toiveisiin sopiviksi. Kattokerroksesta löytyy hieno sauna- ja neuvottelutila. Lisäksi käyttäjiä palvelee aulapalvelu, uudistettu neuvottelumaailma sekä ravintola. Kellariin on sijoitettu tasokas kuntosali sekä autohalli.
Tilan kuvaus:
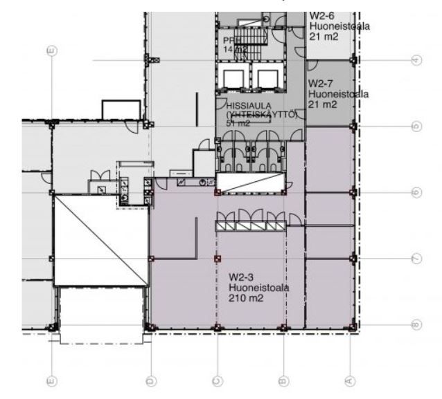
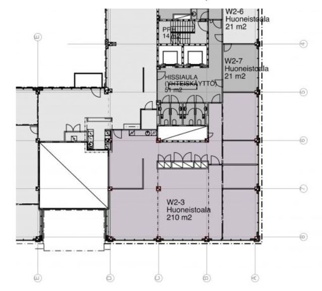
Vapaana toisen kerroksen toimistotila. Kiinteistön valoisat ja joustavat toimistotilat soveltuvat niin avotoimistoksi kuin huonetoimistoksi.
Kerros: 2
Osoite
Itämerenkatu 1, 00180 Helsinki
Tilatyyppi
Toimistotilaa
210 m2
Vapautuu
Heti vapaa
Ota yhteyttä
Pyydä lisätietoa
