Vuokrataan toimistotilat - Helsinki
Pohjoinen rautatiekatu 25, Kamppi, keskusta, 00100 Helsinki #10815625
Rakennuksen kuvaus:
Pohjoisen Rautatiekadun ja Runeberginkadun kulmassa sijaitseva vuonna 1999 rakennettu toimistokiinteistö, joka on modernisoitu tekniikaltaan. Valoisat toimistotilat palvelevat monenlaisia käyttäjiä. Kiinteistön ensimmäisessä kerroksessa on neuvottelu- ja kokoustiloja, ullakkokerroksessa saunatilat. Kellarikerroksesta löytyy vuokrattavaa varastotilaa sekä hallipaikat 15 autolle. Kampin kauppakeskus palveluineen sijaitsee vain noin 400m kävelymatkan päässä kiinteistöltä.
Tilan kuvaus:
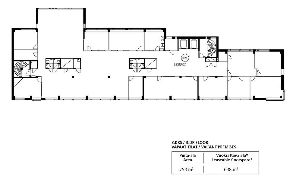
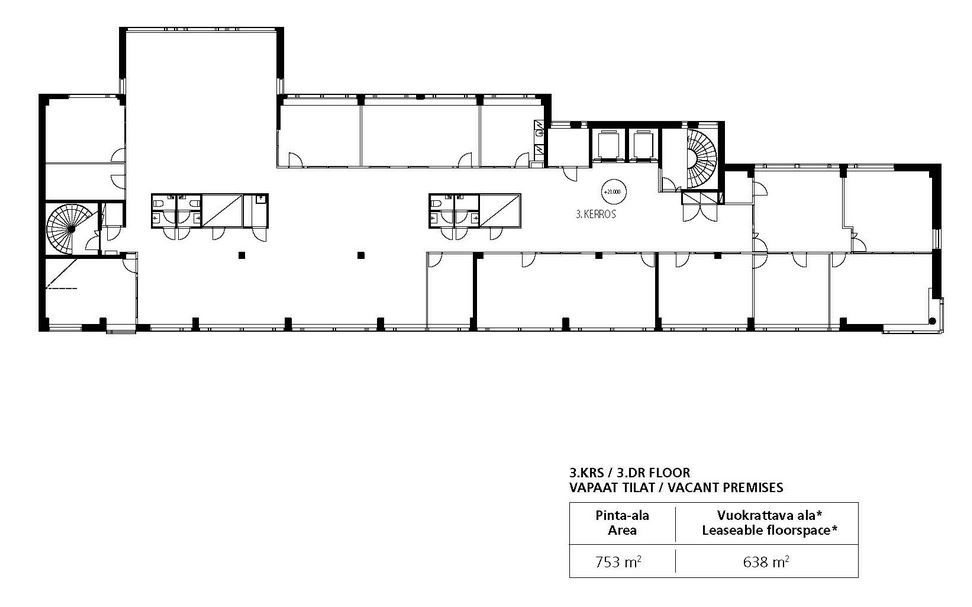
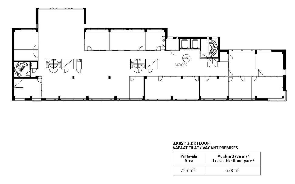
Vapaana kolmannen kerroksen valoisat toimistotilat, jotka voidaan toteuttaa monenlaisten käyttäjien toiveille sopiviksi. Talossa uudenveroinen tekniikka ja tilat soveltuvat modernille käyttäjälle.
Kerros: 3
