Vuokrataan toimistotilat - Helsinki
Kasarmikatu 25, Keskusta, 00130 Helsinki #10815614
Rakennuksen kuvaus:
Kaunis, boutique-henkinen toimistotalo on suojeltu arvokiinteistö, josta on modernisoitu uniikki ja nykyaikainen toimistokohde. Kaartinkaupungissa talo on ravintoiden, baarien ja hotellien ympäröimä ja vain kävelyetäisyydellä julkisista liikenneyhteyksistä. Uudistunut talo on saanut uudet palvelut ja katutasossa on mm. ravintola sekä vuokralaisille kokoustilat sekä atriumaula aulapalveluineen. Harkittu kokonaisuus harvainaislaatuisessa kohteessa halutulla sijainnilla!
Tilan kuvaus:
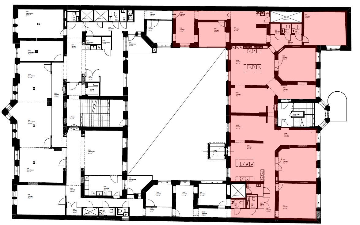
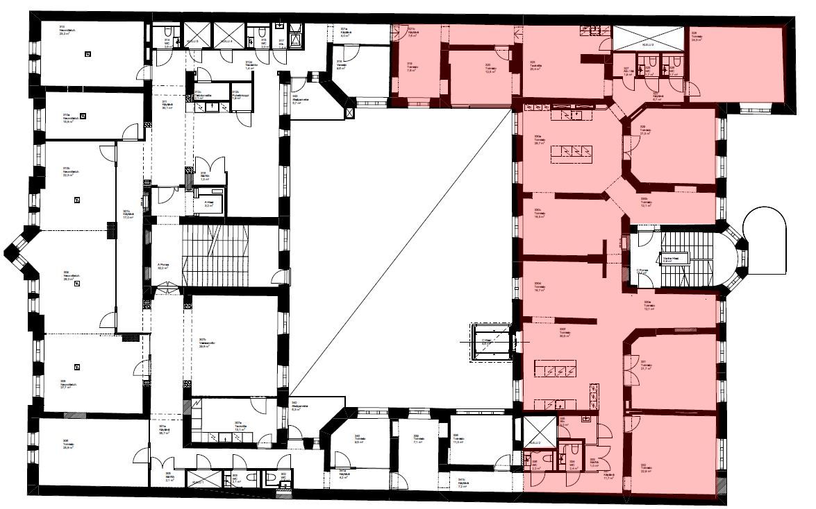
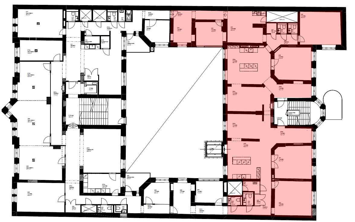
Vuokrattavissa viihtyisä kolmannen kerroksen toimistotila juuri saneerauksesta valmistuneesta kiinteistöstä. Toimistot räätälöidään yrityksen tilatarpeisiin uniikeiksi, kodikkaiksi toimistoksi, joissa on moderni tilatekniikka. Tämä 350m² toimisto sijaitsee arvokiinteistön sisäpihan puoleisessa osassa ja jakautuu erikokoisiin huoneisiin pohjakuvan osoittamin tavoin.
Kerros: 3
