Vuokrataan toimistotilat - Helsinki
Valimotie 14, Pitäjänmäki, 00380 Helsinki #10815602
Rakennuksen kuvaus:
Valimotie 14 on uusi kehityshanke Pitäjänmäen sydämessä. Valimosta on hyvät liikenneyhteydet keskustaan, lentokentälle sekä muihin pääkaupunkiseudun alueisiin. Valimon juna-asema sijaitsee noin 500 metrin päässä, kuten myös Valimotien bussipysäkki, josta kulkee useita seutu- (mm. jokerilinja) ja sisäisiä linjoja.
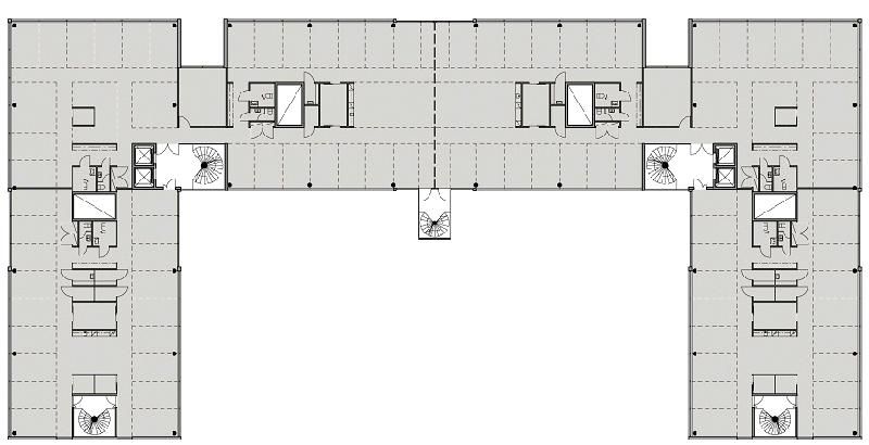
Valimotie 14 tarjoaa nykyaikaista ja tehokasta tilaa vaativiinkin tarpeisiin. Ensimmäisessä kerroksessa sijaitsevat kohteen palvelut, joita ovat mm. 130-paikkainen ravintola, vastaanotto- ja neuvottelutilat, sekä kaksi toimistosiipeä. Kerrokset 2-7 ovat toimistokerroksia. Parkkipaikat sijaitsevat kahdessa kellarikerroksessa.
Tilan kuvaus:
Uutta joustavaa tilaa Valimon sydämessä. Työpisteet on sijoitettu rakennuksen ulkoseinien viereen luonnonvalon hyödyntämiseksi. Keskialueilla sijaitsevat viihtyisät tauko- ja kohtaamistilat sekä wc- ja kopiotilat. Jäähdytettyä ja energiatehokasta tilaa, jossa akustiikkaan on kiinnitetty erityishuomio.
Kerrokset kerrokset jaettavissa 1-4 käyttäjän kesken, jolloin yksi osa 595m2.
Kerros: 3-7
