Vuokrataan toimistotilat - Helsinki
Kiviaidankatu 2, Lauttasaari, 00210 Helsinki #10815591
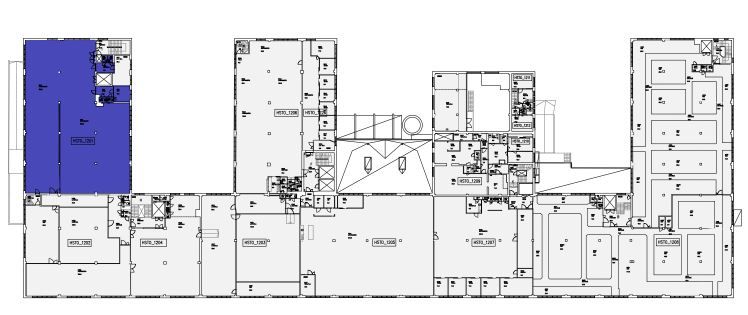
Rakennuksen kuvaus:
Vanha teollisuusrakennus Lauttasaaressa, josta on saneerattu upeita toimitiloja yritysten toivomusten mukaan. Lauttasaaren metroasemalle on noin 500m ja kulkuyhteydet alueelle on hyvät. Henkilöautoileville on tarjolla autopaikkoja pihalla 40kpl sekä hallissa 150kpl. Talossa on nopeat IT-linjat. Kiinteistössä toimii crosstraining-liikuntaan erikoistunut kuntokeskus ja kampaamo. Alueella on useita lounasravintoloita, päivittäistavarakauppoja ja monipuolinen liikuntakeskus.
Tilan kuvaus:
Vapaana raakatilaa entisessä pienteollisuuskiinteistössä. Tilassa on lastauslaituri sekä tavarahissiyhteys. Tila on muokattavissa asiakkaan tarpeen mukaan. Kiviaidankatu 2 on vanha tehdaskiinteistö, joka on saneerattu toimistokäyttöön. Tilat ovat valoisat ja monipuoliset.
Kerros: 2
