Vuokrataan toimistotilat - Helsinki
Kaupintie 5, Lassila, 00440 Helsinki #10815590
Rakennuksen kuvaus:
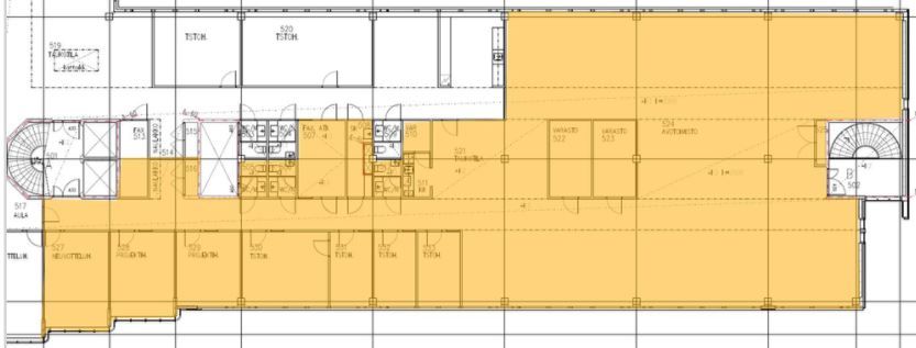
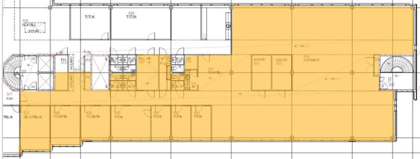
Toimistotilaa keskeiseltä paikalta Lassilasta. Erinomaiset kulkuyhteydet mm. lentokentälle, Kehä I kulkee vieressä. Juna-asema sekä bussipysäkit lähistöllä. Viisikerroksinen toimistotalo hyvällä alueella. Kerrosala 898 m2. Vuokrattavat saunatilat ylimmässä kerroksessa. Pohjakerroksessa tilaa esim. yritystilaisuuksiin sekä vuokrattava neuvottelutila n. 40 hengelle. Paikoitus autohallissa ja viereisessä parkkihallissa.
Tilan kuvaus:
Vapaata toimistotilaa viidennessä kerroksessa. Tila koostuu avotilasta sekä työhuoneista. Kohtuuhintainen vaihtoehto hyvien liikenneyhteyksien varrelta.
Kerros: 5
Osoite
Kaupintie 5, 00440 Helsinki
Tilatyyppi
Toimistotilaa
511 m2
Vapautuu
Vapautuminen sopimuksen mukaan
Ota yhteyttä
Pyydä lisätietoa
