Vuokrataan liiketilat - Helsinki
Annankatu 27, Kamppi, keskusta, 00100 Helsinki #10815584
Rakennuksen kuvaus:
Vanha, kattoikkunoin varustettu arvokiinteistö Kampissa Annankadun ja Eerikinkadun kulmassa, joka on rakennettu vuonna 1897. Kiinteistön julkisivu on kaunis ja sen porraskäytävät näyttävät. Rakennus sijaitsee vain lyhyen kävelymatkan päässä Kampin Keskuksesta, jossa on tarjolla paljon erilaisia palveluja sekä metroasema ja bussiterminaali. Kampin lisäksi, kaikki muut keskustan alueen palvelut sijaitsevat lyhyen kävelymatkan päässä kiinteistöltä. Henkilöautoileville pysäköinti on mahdollista muun muassa Forumin ja Kampin pysäköintihalleihin.
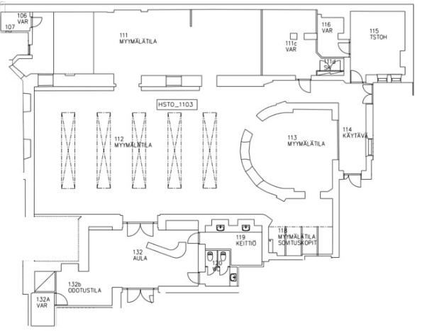
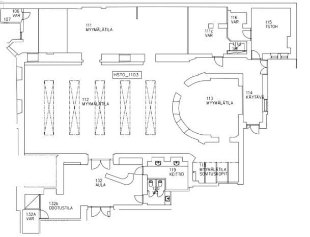
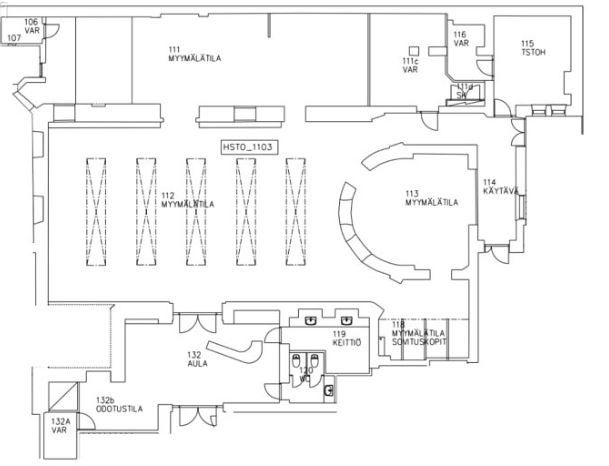
Tilan kuvaus:
Myymälä- ja näyttelykättöön soveltuva korkea tila, missä on kattoikkunat tilan keskiosassa. Sisäänkäynti Eerikinkadun puolelta. Tilassa ei ole näyteikkunoita, mutta suora sisäänkäynti oman oven kautta Eerikinkadulta.
Kerros: 1
