Vuokrataan toimistotilat - Helsinki
Annankatu 27, Kamppi, keskusta, 00100 Helsinki #10815583
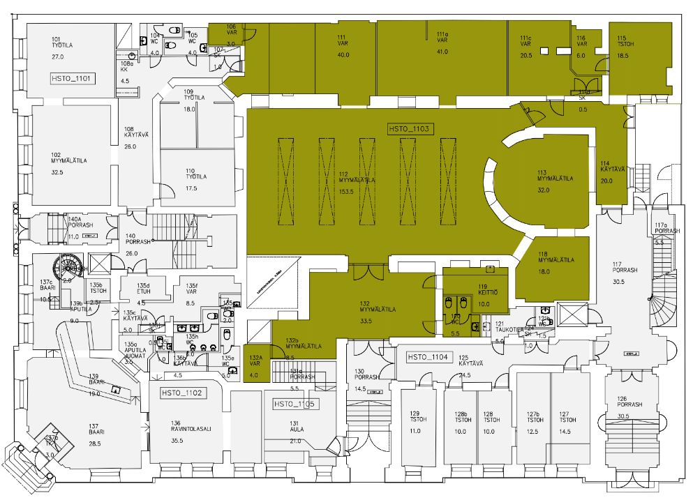
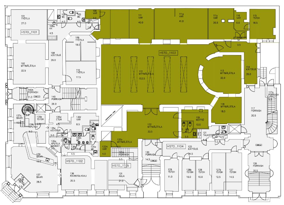
Rakennuksen kuvaus:
Vanha, kattoikkunoin varustettu arvokiinteistö Kampissa Annankadun ja Eerikinkadun kulmassa, joka on rakennettu vuonna 1897. Kiinteistön julkisivu on kaunis ja sen porraskäytävät näyttävät. Rakennus sijaitsee vain lyhyen kävelymatkan päässä Kampin Keskuksesta, jossa on tarjolla paljon erilaisia palveluja sekä metroasema ja bussiterminaali. Kampin lisäksi, kaikki muut keskustan alueen palvelut sijaitsevat lyhyen kävelymatkan päässä kiinteistöltä. Henkilöautoileville pysäköinti on mahdollista muun muassa Forumin ja Kampin pysäköintihalleihin.
Tilan kuvaus:
Myymälä, näyttely- ja toimistokäyttöön soveltuva korkea tila, kattoikkunat. Tilassa ei ole näyteikkunoita, mutta oma sisäänkäynti oman oven kautta Eerikinkadulta.
Kerros: 1
