Vuokrataan toimistotilat - Helsinki
KOO3, Kansakoulunkatu 3, Kamppi, 00100 Helsinki #10815572
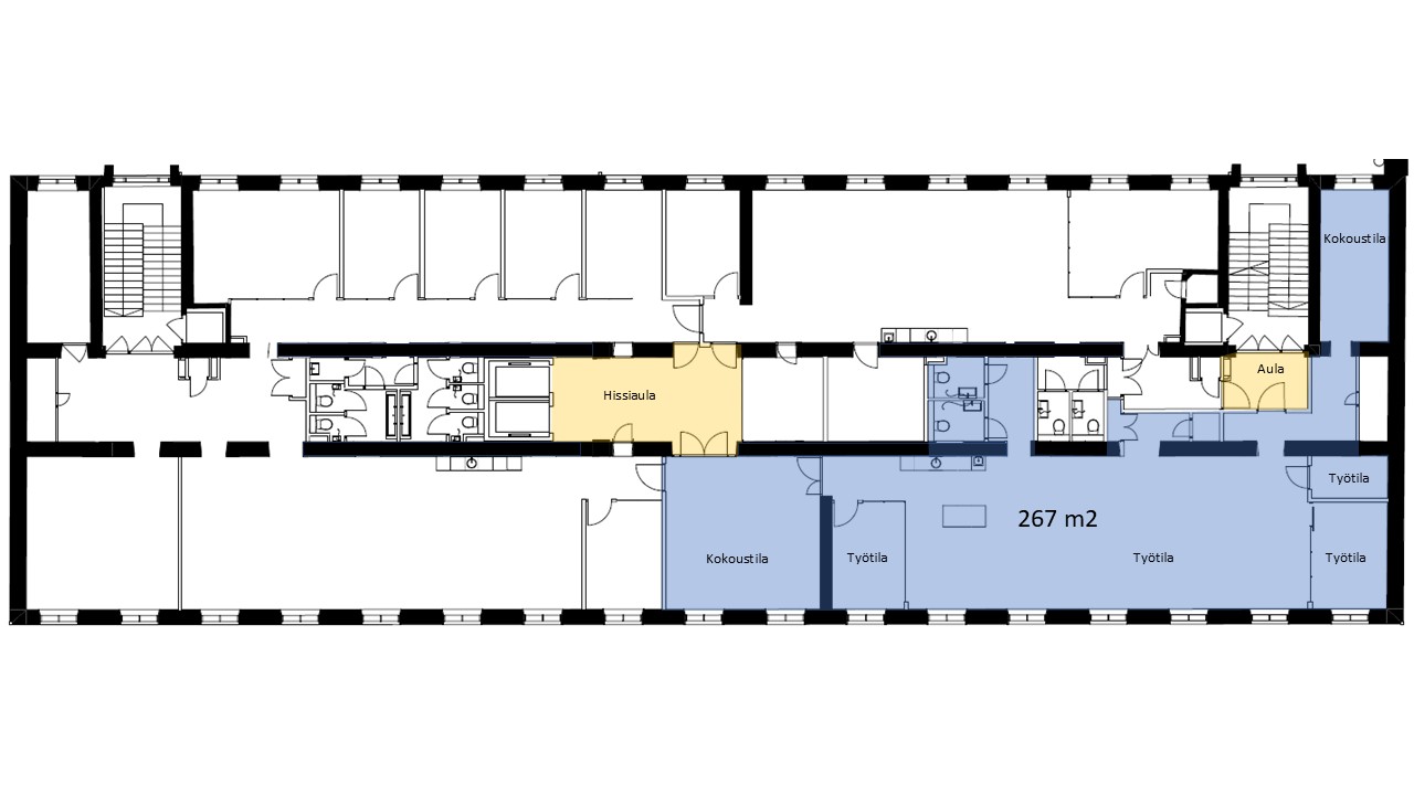
Moderni ja valoisa 267 m² toimisto Helsingin Kampissa.
Osoite
Kansakoulunkatu 3, 00100 Helsinki
Tilatyyppi
Toimistotilaa
267 m2
Pohjapiirros
Kiinteistö
3. kerroksen 267 m² moderni ja valoisa toimisto mahdollistaa työtilojen joustavan järjestelyn. Pohjaratkaisuun voidaan tehdä kevyitä seinämuutoksia uuden käyttäjän tarpeiden mukaan.
Toimivilla tiloilla ja kattavilla palveluilla KOO3 tarjoaa parhaan perustan niin pienen kuin isommankin yrityksen menestykselle.
KOO3-kiinteistön peruskorjaus valmistui 2022. Peruskorjauksen myötä tilat täyttävät modernin toimiston vaatimukset niin visuaalisesti kuin teknisestikin.
KOO3-toimistorakennuksen pinta-ala on noin 7000 neliömetriä sisältäen kuusi toimistokerrosta, ullakkokerroksen ja kaksi kellarikerrosta.
Sisäänkäynnin yhteydessä on vastaanottoaula, jonka toiminnasta vastaa Innovation Home. Aulassa voit nauttia kahvista tai viinilasillisesta yhdessä kollegan kanssa.
Ylempi kellarikerros on suoraan sisäpihan alapuolella ja sen useat kattoikkunat tuovat tiloihin valoa. Innovation Home operoi kellarikerrosta, mukaan lukien neuvotteluhuoneita ja tapahtumatilaa.
Alemmassa kellarikerroksessa on 18 pysäköintipaikkaa. Lisää pysäköintitilaa on saatavana EuroParkin P-CityForum-pysäköintihallista, johon on jalankulkuyhteys Kansakoulukujalla vain 40 metrin päässä KOO3:n pääsisäänkäynnistä.
Pihalla ja kellarissa on pyöräpysäköinti. Kellarissa on lisäksi yhteiset sosiaaliset tilat ja saunat.
Kullatuista Gunnar Finnen reliefeistään tunnettu KOO3 sijaitsee Helsingin keskustassa hyvien kulkuyhteyksien varrella. Kampin metroasema, sen bussiterminaalit (paikallinen ja kaukoliikenne) ja maanalaiset pysäköintialueet ovat korttelin toisella puolella. Lisäksi päärautatieasema on muutaman korttelin päässä sekä useita raitiovaunupysäkkejä aivan kulman takana. Lähellä monipuoliset palvelut, kaupat, ravintolat, hotellit, terveyskeskukset jne.
Peruskorjausprojekti saavutti GOLD-tason LEED-sertifikaatin. Kiinteistö hankkii vihreätä energiaa ja on CO2 päästötön.
Toimivilla tiloilla ja kattavilla palveluilla KOO3 tarjoaa parhaan perustan niin pienen kuin isommankin yrityksen menestykselle.
KOO3-kiinteistön peruskorjaus valmistui 2022. Peruskorjauksen myötä tilat täyttävät modernin toimiston vaatimukset niin visuaalisesti kuin teknisestikin.
KOO3-toimistorakennuksen pinta-ala on noin 7000 neliömetriä sisältäen kuusi toimistokerrosta, ullakkokerroksen ja kaksi kellarikerrosta.
Sisäänkäynnin yhteydessä on vastaanottoaula, jonka toiminnasta vastaa Innovation Home. Aulassa voit nauttia kahvista tai viinilasillisesta yhdessä kollegan kanssa.
Ylempi kellarikerros on suoraan sisäpihan alapuolella ja sen useat kattoikkunat tuovat tiloihin valoa. Innovation Home operoi kellarikerrosta, mukaan lukien neuvotteluhuoneita ja tapahtumatilaa.
Alemmassa kellarikerroksessa on 18 pysäköintipaikkaa. Lisää pysäköintitilaa on saatavana EuroParkin P-CityForum-pysäköintihallista, johon on jalankulkuyhteys Kansakoulukujalla vain 40 metrin päässä KOO3:n pääsisäänkäynnistä.
Pihalla ja kellarissa on pyöräpysäköinti. Kellarissa on lisäksi yhteiset sosiaaliset tilat ja saunat.
Kullatuista Gunnar Finnen reliefeistään tunnettu KOO3 sijaitsee Helsingin keskustassa hyvien kulkuyhteyksien varrella. Kampin metroasema, sen bussiterminaalit (paikallinen ja kaukoliikenne) ja maanalaiset pysäköintialueet ovat korttelin toisella puolella. Lisäksi päärautatieasema on muutaman korttelin päässä sekä useita raitiovaunupysäkkejä aivan kulman takana. Lähellä monipuoliset palvelut, kaupat, ravintolat, hotellit, terveyskeskukset jne.
Peruskorjausprojekti saavutti GOLD-tason LEED-sertifikaatin. Kiinteistö hankkii vihreätä energiaa ja on CO2 päästötön.
Vapautuu
Heti
Rakennusvuosi
1931
Saneerausvuosi
2022
Kerros
3 / 7
Energiatehokkuusluokka
Ei lain edellyttämää energiatodistusta
Ympäristöluokitus
LEED Gold
Hissi
Ota yhteyttä
ScanReal Oy LKV
Opus Business Park
Hitsaajankatu 24
00810 Helsinki
info@scanreal.fi
Puh:
Näytä puhelinnumero
020 730 8830
Sopivat toimitilat yhdellä otolla!
Kartoitamme toimitilatarpeesi ja etsimme yrityksellesi parhaiten sopivat vapaat toimitilat. Koska vuokranantajat maksavat palvelumme, on tämä yrityksellesi veloituksetonta.
OTA YHTEYTTÄ - SOVI NÄYTTÖ!
Kaikki kohteemme eivät ole netissä, kerro tilatarpeesi niin kartoitamme vaihtoehdot.
Palvelumme on tilanhakijalle ilmainen
Pyydä lisätietoa
