Vuokrataan toimistotilat - Helsinki
Pursimiehenkatu 29-31, Punavuori, 00150 Helsinki #10815485
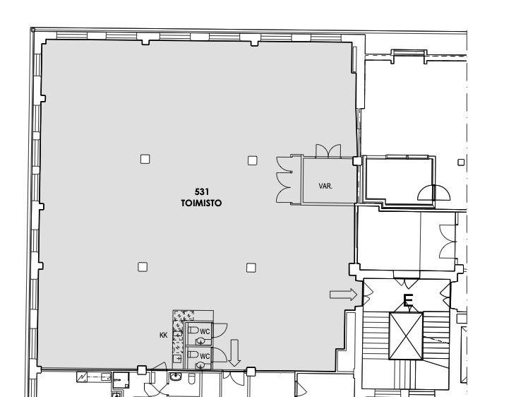
Vuokrattavana toimistotilaa Helsingin Punavuoresta.
Tämä muuttovalmis 341 m² toimistotila avara ja valoisa. Se sijaitsee kiinteistön 5. kerroksessa. Toimistossa on oma keittiöpiste ja wc-tilat sekä isot ikkunat, jotka tuovat tilaan runsaasti luonnonvaloa. Soveltuu myös showroom-käyttöön.
Merikortteli on 1920-luvulla rakennettu teollisuuskiinteistö, jonka tilat on peruskorjattu huipputasoisiksi ja moderneiksi toimisto- studio- ja työtiloiksi. Kiinteistö sijaitsee urbaanissa Punavuoressa kattaen koko korttelin. Se pitää sisällään 28 000 m2 toimitiloja kuudessa kerroksessa. Tilat huokuvat persoonallisuutta ja industrial-fiilistä. Lisäksi ne ovat muokattavissa vuokralaisten tarpeiden mukaan.
Kysy lisää numerosta 044 723 4700 tai info@bref.fi. Palvelumme on tilanhakijoille ilmainen.
Hissi
Bureau Real Estate Finland Oy
Lars Sonckin kaari 16, 02600 Espoo
Näytä puhelinnumero
0447234700
Bureau Real Estate Finland Oy
https://www.bref.fi