Vuokrataan tuotantotilat, varastotilat, autotalli/-hallitilat - Jyväskylä
Haapaniementie 1, 40800 Jyväskylä #10815449
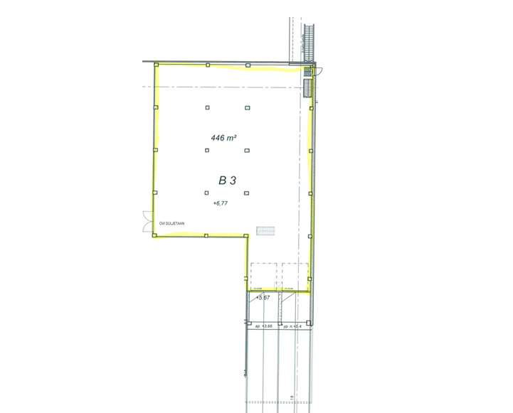
Vuokrataan n. 446 m2 kylmää varastotilaa Vaajakoskelta Haapaniementieltä. Tilassa vapaat korkeudet ovat välillä n. 4,5 - 6 metriä. Tilaan on ajoluiska / ramppi nosto-ovella sekä lastauslaituri nosto-ovella. Nosto-ovien leveydet n. 3 m ja korkeudet n. 3,6 m.
Kohteessa on erikseen vuokrattavissa myös pihatilaa.
Lisätiedot ja näytöt: Henri Kumpulainen, 040 864 3631, henri.kumpulainen@aveon.fi
Aveon Real Estate Oy
Kauppakatu 18 C 26, 40100 Jyväskylä
Henri Kumpulainen
Puh.
Näytä puhelinnumero
040 864 3631
henri.kumpulainen@aveon.fi
Olemme kiinteistöliiketoiminnan asiantuntija, joka toimii yrittäjämäisesti neuvonantajana kiinteistökaupoissa, toimitilavälittämisessä sekä kiinteistökehityksessä.
Asiakkaitamme ovat kotimaiset ja ulkomaiset kiinteistönomistajat, -sijoittajat sekä tilojen käyttäjät kaikkialla Suomessa.
