Vuokrataan tuotantotilat, varastotilat, työtilat, autotalli/-hallitilat, muut tilat - Jyväskylä
Haapaniementie 1, 40800 Jyväskylä #10815448
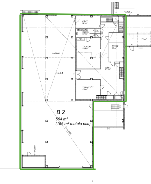
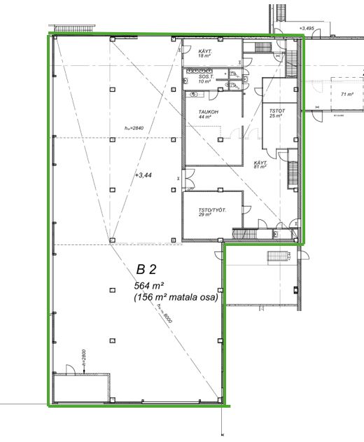
Vuokrataan n. 564 m2 kylmää varasto - / työtilaa ja tarvittaessa myös saatavilla n. 207 m2-kokoinen sosiaali - / toimistotilakokonaisuus hallin yhteydessä. Yhteensä tilaa siis n. 771 m2. Tila sijaitsee Vaajakoskella Haapaniementiellä. Varastotilassa on n. 408 m2 korkeampaa ja n. 156 m2 matalampaa tilaa, vapaat korkeudet noin 5 ja 3 metriä. Tilaan on myös maatason liukuovi. Sosiaali - / ja toimistotiloissa kaksi toimistohuonetta sekä tauko- ja pukuhuone + 2 kpl WC.
Kohteessa on erikseen vuokrattavissa myös pihatilaa.
Lisätiedot ja näytöt: Henri Kumpulainen, 040 864 3631, henri.kumpulainen@aveon.fi
Jaettavissa
Aveon Real Estate Oy
Kauppakatu 18 C 26, 40100 Jyväskylä
Henri Kumpulainen
Puh.
Näytä puhelinnumero
040 864 3631
henri.kumpulainen@aveon.fi
Olemme kiinteistöliiketoiminnan asiantuntija, joka toimii yrittäjämäisesti neuvonantajana kiinteistökaupoissa, toimitilavälittämisessä sekä kiinteistökehityksessä.
Asiakkaitamme ovat kotimaiset ja ulkomaiset kiinteistönomistajat, -sijoittajat sekä tilojen käyttäjät kaikkialla Suomessa.
