Vuokrataan toimistotilat - Helsinki
Mikonkatu 2, Keskusta, 00100 Helsinki #10815364
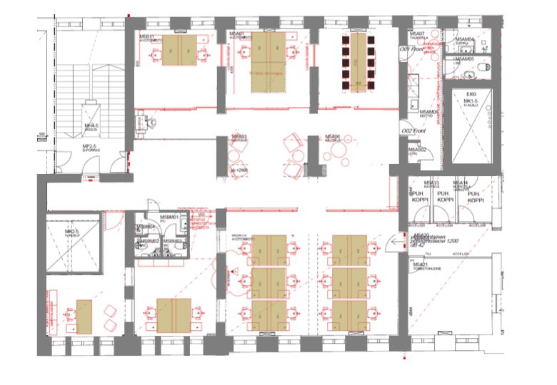
Siisti 268 m² toimisto vuonna 1888 rakennetussa arvokiinteistössä, loistavalla paikalla Pohjoisesplanadin ja Mikonkadun kulmassa.
Tässä K.A. Wreden suunnittelemassa ja vuonna 1888 valmistuneessa arvokiinteistössä tehdyt perusparannustyöt on toteutettu kiinteistön arkkitehtuuria ja arvokasta historiaa kunnioittaen. Uudet nykyaikaiset toimistot ovat vertaansa vailla tunnelmallisessa ja arvokkaassa rakennuksessa
Pohjoisesplanadin ja Mikonkadun kulmaan sijoittuvassa kiinteistössä on laadukkaita toimistotiloja monen kokoisille yrityksille. Kohteessa on tehokkaat tilaratkaisut, jotka voi joustavasti hyödyntää monitilaympäristönä. Tiloissa on koneellinen ilmanvaihto ja jäähdytys.
Näkyvällä paikalla
Hissi
ScanReal Oy LKV
Opus Business Park
Hitsaajankatu 24
00810 Helsinki
info@scanreal.fi
Puh:
Näytä puhelinnumero
020 730 8830
Sopivat toimitilat yhdellä otolla!
Kartoitamme toimitilatarpeesi ja etsimme yrityksellesi parhaiten sopivat vapaat toimitilat. Koska vuokranantajat maksavat palvelumme, on tämä yrityksellesi veloituksetonta.
OTA YHTEYTTÄ - SOVI NÄYTTÖ!
Kaikki kohteemme eivät ole netissä, kerro tilatarpeesi niin kartoitamme vaihtoehdot.
Palvelumme on tilanhakijalle ilmainen
