Vuokrataan toimistotilat - Jyväskylä
Ylistönmäentie 33, 40500 Jyväskylä #10815362
Nyt tarjolla yrityksesi tarpeeseen muokattavat toimistotilat suositulta alueelta Ylistönmäeltä kuudennen kerroksen upeilla näköaloilla. Saat käyttöösi myös yhteiskäytössä olevat kokoustilat, saunatilat ja kuntosalin.
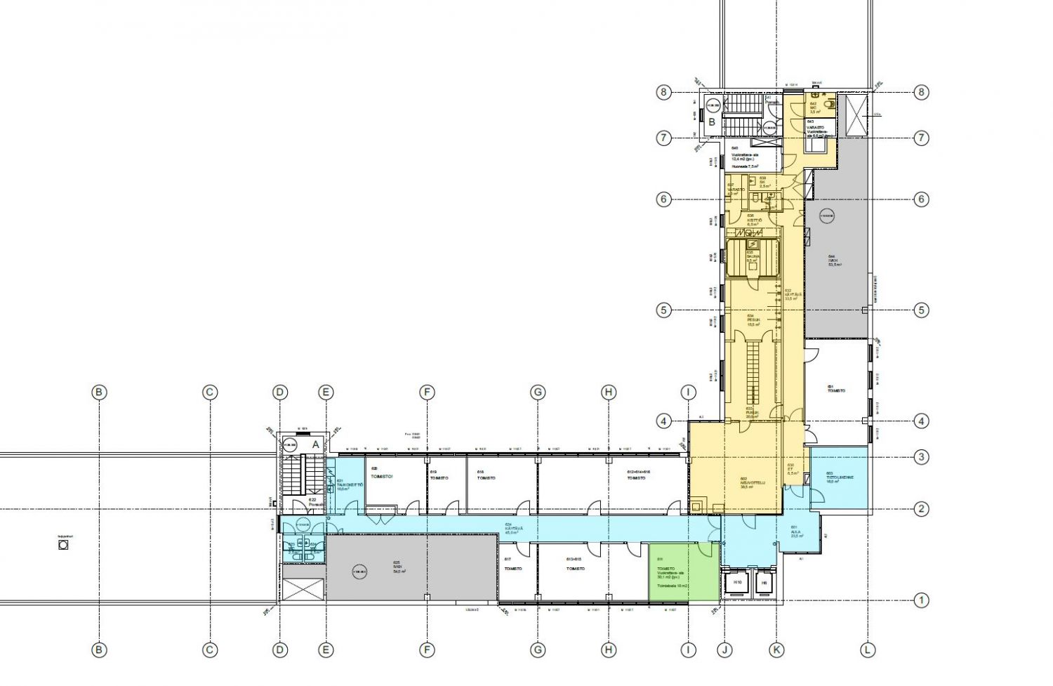
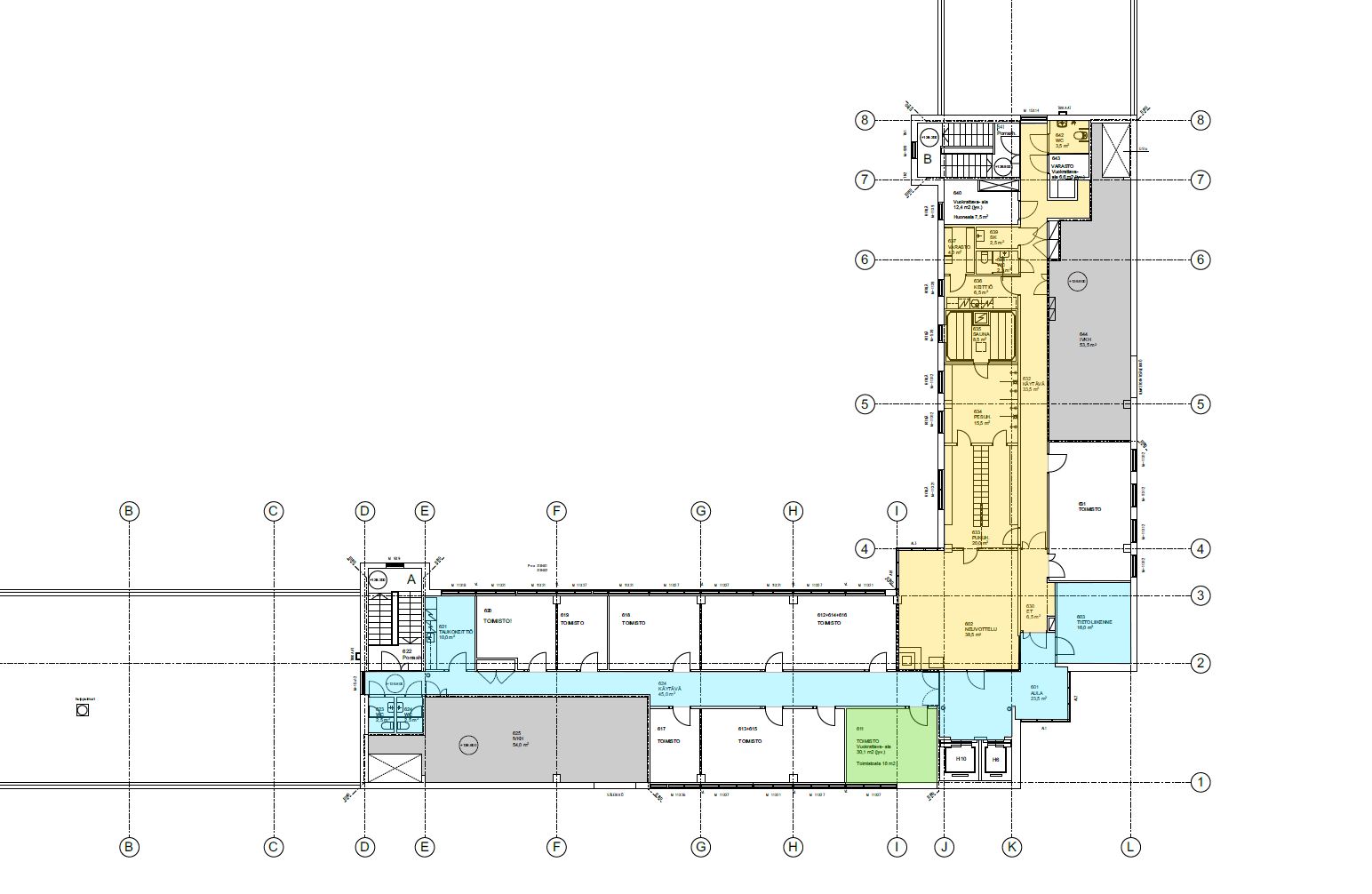
Vuokrattava toimistotila on 30,1 m2 kokoinen ja toimistotilan lisäksi vuokrattavaan alaan sisältyy käyttöoikeus yhteisiin tiloihin. Näihin sisältyy keittiö/taukotila, WC- tilat, erikseen varattava neuvottelu/kokoustila sekä kuntosali.
Kohteessa on yli 100 omaa parkkipaikkaa.
Saat käyttöösi talon runsaat palvelut:
Yhteiskäytössä olevat kokoustilat, saunatilat ja kuntosalin sekä alakerran ravintolan lounas- ja catering-palvelut.
Kohteen sijainti on erinomainen: sinne on helppo tulla sekä autolla että julkisella liikenteellä. Juna- ja linja-autoasema 3 km, linja-autopysäkki 100 m.
Ylistönmäki on upea puistomainen alue, jolla sijaitsee useita eri toimistorakennuksia ja yrityksiä. Kiinteistössä on saatavilla siistien ja nykyaikaisten työ- ja virkistystilojen lisäksi myös kattavat palvelut.
Tutustu nykyisten vuokralaisten kokemuksiin kohteesta täällä: https://konttorit.fi/kokemukset/jyvaskylan-ylistonmaen-toimitilat-vuokralaisten-kokemuksia/
Lue lisää kohteesta ja katso esittelyvideo: https://konttorit.fi/jyvaskylan-ylistonmaki/
Tule rohkeasti katsomaan tiloja ja mietitään yhdessä, miten saamme niistä täsmälleen yrityksesi tarpeita palvelevat. Ota yhteyttä ja kysy lisää!
Yhteiskäytössä olevat kokoustilat, saunatilat ja kuntosalin sekä alakerran ravintolan lounas- ja catering-palvelut.
Juna- ja linja-autoasema 3 km, linja-autopysäkki 100 m.
Hissi
Samla Toimitilat
Elina Venäläinen
Asset Manager
Näytä puhelinnumero
050 557 3659
Hannikaisenkatu 39
40100 JYVÄSKYLÄ
Samla Capital on suomalainen kiinteistösijoittamiseen erikoistunut yhtiö, joka sijoittaa kasvukeskusten kiinteistöihin hallinnoimiensa rahastojen kautta. Rahastorakenne mahdollistaa sijoittamisen kiinteistöihin sekä ammattimaisille että ei-ammattimaisille sijoittajille. Yhtiön perusti vuonna 2015 yhdistetyn kolminkertainen Olympiavoittaja, KTM, Samppa Lajunen.
http://www.samlacapital.fi