Vuokrataan toimistotilat - Helsinki
Mannerheimintie 15b, Taka-Töölö, 00260 Helsinki #10815359
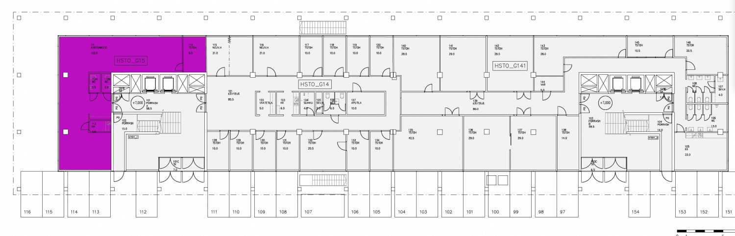
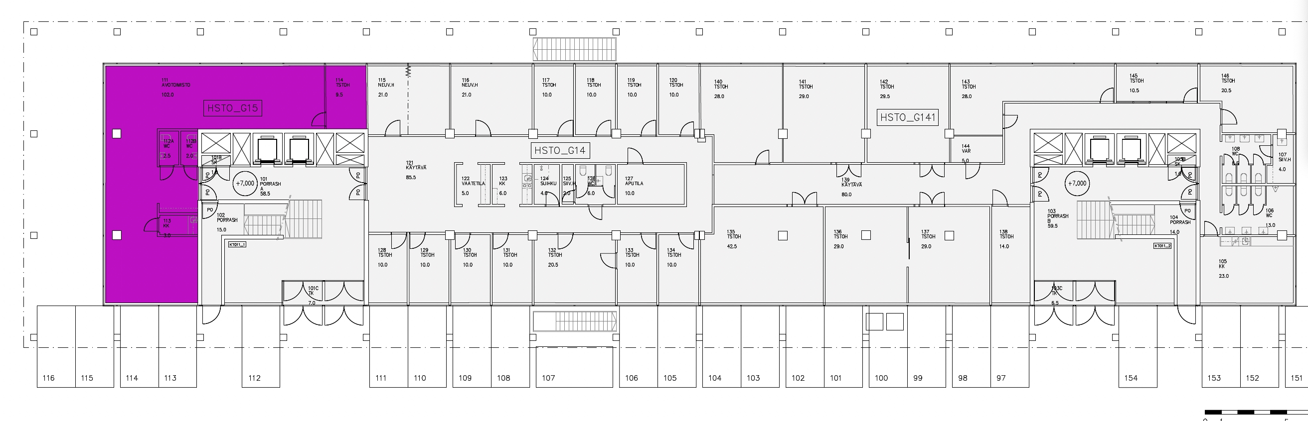
Katutason 121,5 m² toimistotila entisen Töölön sokeritehtaan alueella Taka-Töölössä
Osoite
Mannerheimintie 15b, 00260 Helsinki
Tilatyyppi
Toimistotilaa
121,5 m2
Kiinteistö
Ensimmäisen kerroksen upea, avonainen toimitila Oopperatalon vieressä, Sakkaroosin lasitalosta. Tilassa avotilan lisäksi erillinen neuvotteluhuone sekä wc- tilat.
Tila on muokattavissa käyttäjän tarpeiden mukaan.
Kiinteistö sijaitsee erinomaisella paikalla, Helsingin keskustan palveluiden keskellä. Perille pääset niin autolla, julkisilla kulkuvälineillä kuin pyörälläkin.
Tila on muokattavissa käyttäjän tarpeiden mukaan.
Kiinteistö sijaitsee erinomaisella paikalla, Helsingin keskustan palveluiden keskellä. Perille pääset niin autolla, julkisilla kulkuvälineillä kuin pyörälläkin.
Vapautuu
Heti
Rakennusvuosi
1974
Kerros
1 / 5
Energiatehokkuusluokka
Ei lain edellyttämää energiatodistusta
Näkyvällä paikalla
Hissi
Ota yhteyttä
ScanReal Oy LKV
Opus Business Park
Hitsaajankatu 24
00810 Helsinki
info@scanreal.fi
Puh:
Näytä puhelinnumero
020 730 8830
Sopivat toimitilat yhdellä otolla!
Kartoitamme toimitilatarpeesi ja etsimme yrityksellesi parhaiten sopivat vapaat toimitilat. Koska vuokranantajat maksavat palvelumme, on tämä yrityksellesi veloituksetonta.
OTA YHTEYTTÄ - SOVI NÄYTTÖ!
Kaikki kohteemme eivät ole netissä, kerro tilatarpeesi niin kartoitamme vaihtoehdot.
Palvelumme on tilanhakijalle ilmainen
Pyydä lisätietoa
