Vuokrataan - Helsinki
Hiomotie 6, Pitäjänmäki, 00380 Helsinki #10815083
Osoite
Hiomotie 6, 00380 Helsinki
Muuta
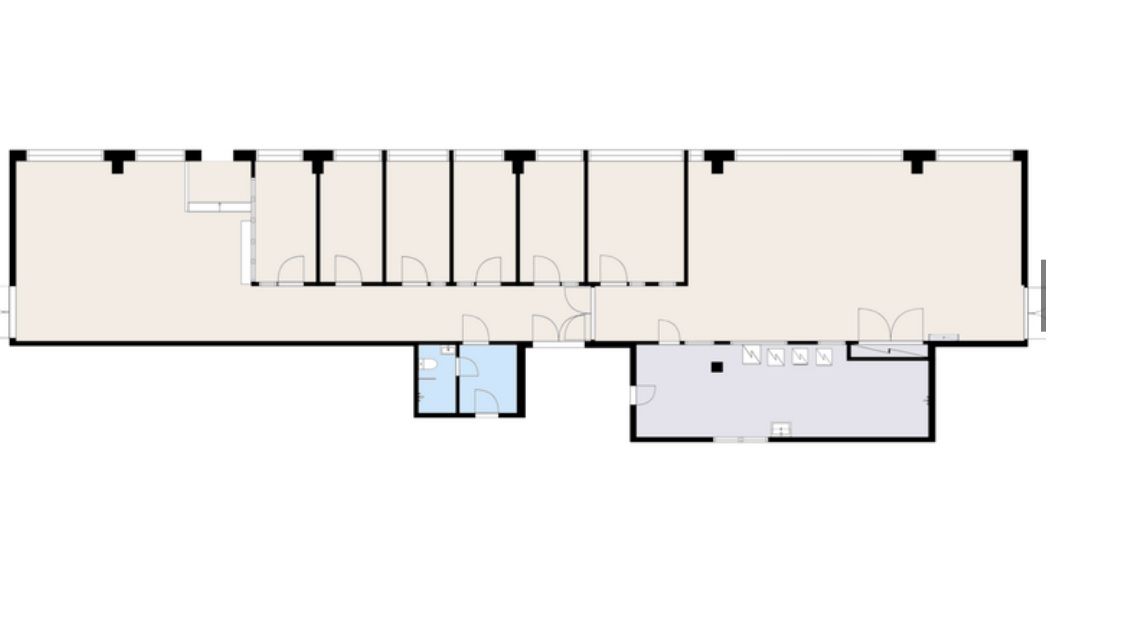
3. kerroksen tila, joka soveltuu koulutustarkoitukseen ja myös toimistokäyttöön. Tilaan kaksi sisäänkäyntiä eri rapuista. Tilaa voidaan jakaa. Tilassa huoneita sekä avotilaa. Kohde sijaitsee helposti saavutettavalla paikalla Helsingin Pitäjänmäessä.
Lisätiedot: Sami Tukiainen 0400 467 694 / sami.tukiainen@kiinteistotahkola.fi
Sampo Ylikulju 040 354 1771/ sampo.ylikulju@kiinteistotahkola.fi
Lisätiedot: Sami Tukiainen 0400 467 694 / sami.tukiainen@kiinteistotahkola.fi
Sampo Ylikulju 040 354 1771/ sampo.ylikulju@kiinteistotahkola.fi
Vapautuu
Heti vapaa
Kerros
3
Ota yhteyttä
Kiinteistö-Tahkola Oy
Itälahdenkatu 15-17, 2krs, 00210 Helsinki
Näytä puhelinnumero
0207 480 294
Sami Tukiainen
Näytä puhelinnumero
0401234564
Pyydä lisätietoa
