Myydään tuotantotilat - Salo
Ketomaankatu 2, Moisio, 24100 Salo #10815046
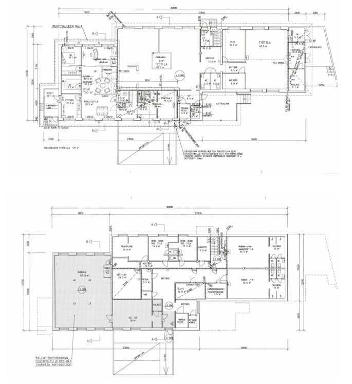
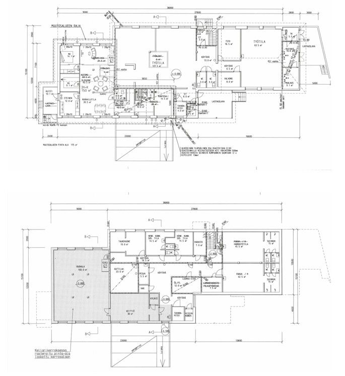
ASUNTO JA TUOTANTOTILA punatiilisessä kiinteistössä.
Monien mahdollisuuksien kaunis kiinteistö aivan Salon keskustan tuntumassa isolla 5011 m2 omalla tontilla. Rakennusoikeutta jäljellä vielä 1340 m2, rajoittuu yhdeltä reunalta puistoon.
Hallitilasta 2014-2015 laadukkaasti remontoitu HUONEISTO iso oh+3h+rh+k+khh+kph+s+wc+et+kuisti 150 m². Vaalea, siisti ja jämäkkä koti.
Tuotantotilaa yli 800 m² monipuolisia tiloja. Siistit, käytännölliset tilat, tallentava valvomo ja keskusradio. Tavarahissi ja lastauslaiturit. Tilat jaettavissa useallekin käyttäjälle. Asuintiloja mahdollista rakentaa lisää nykyiseen kiinteistöön. (Lisärakennusoikeuden 1340 m2 lisäksi).
Hyvät tieyhteydet, moottoritieliittymään Piihovi n. 4 km
