Vuokrataan - Salo
Asemakatu 7, 24100 Salo #10815029
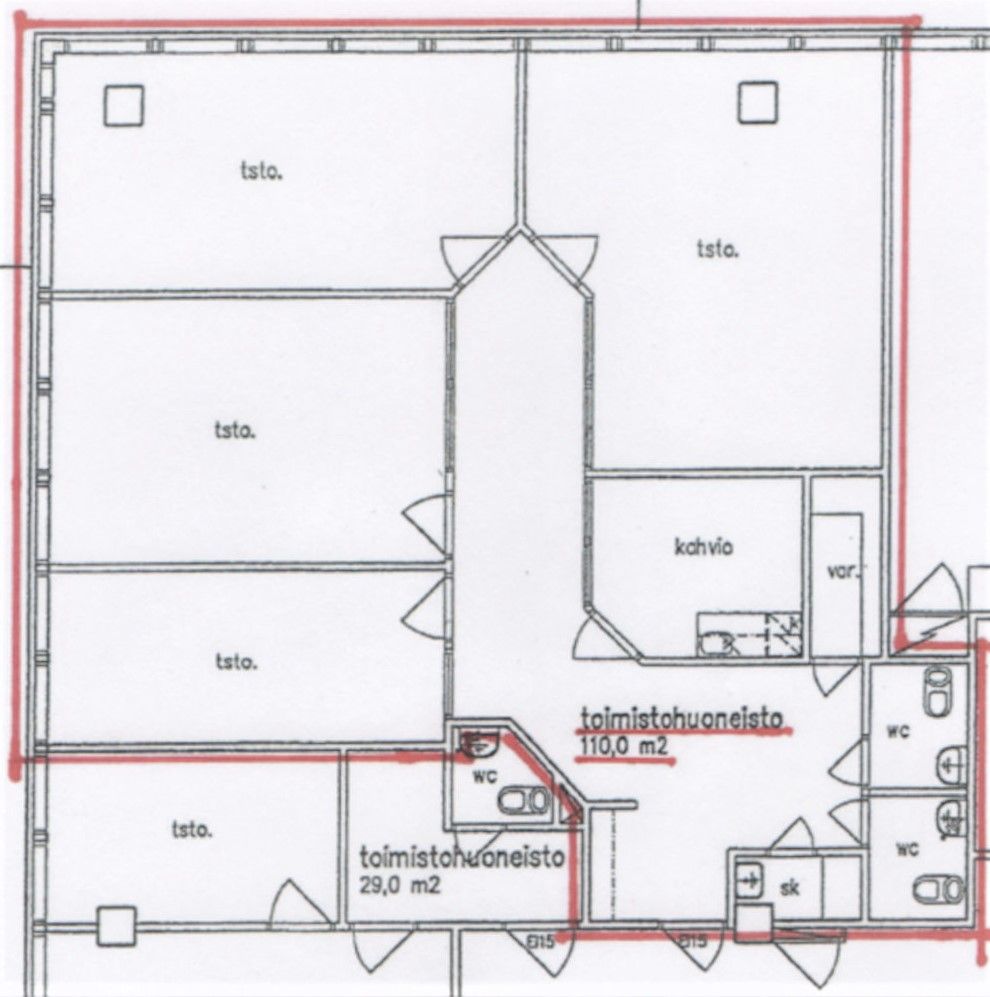
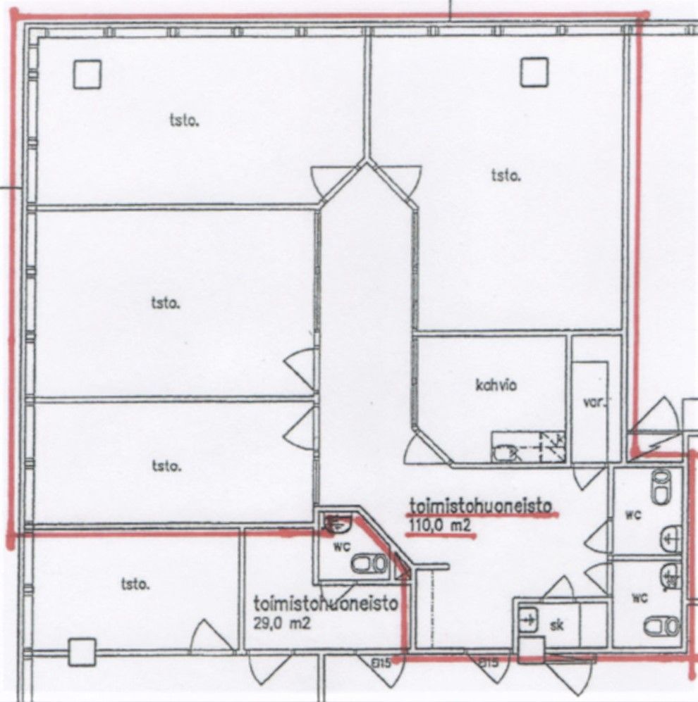
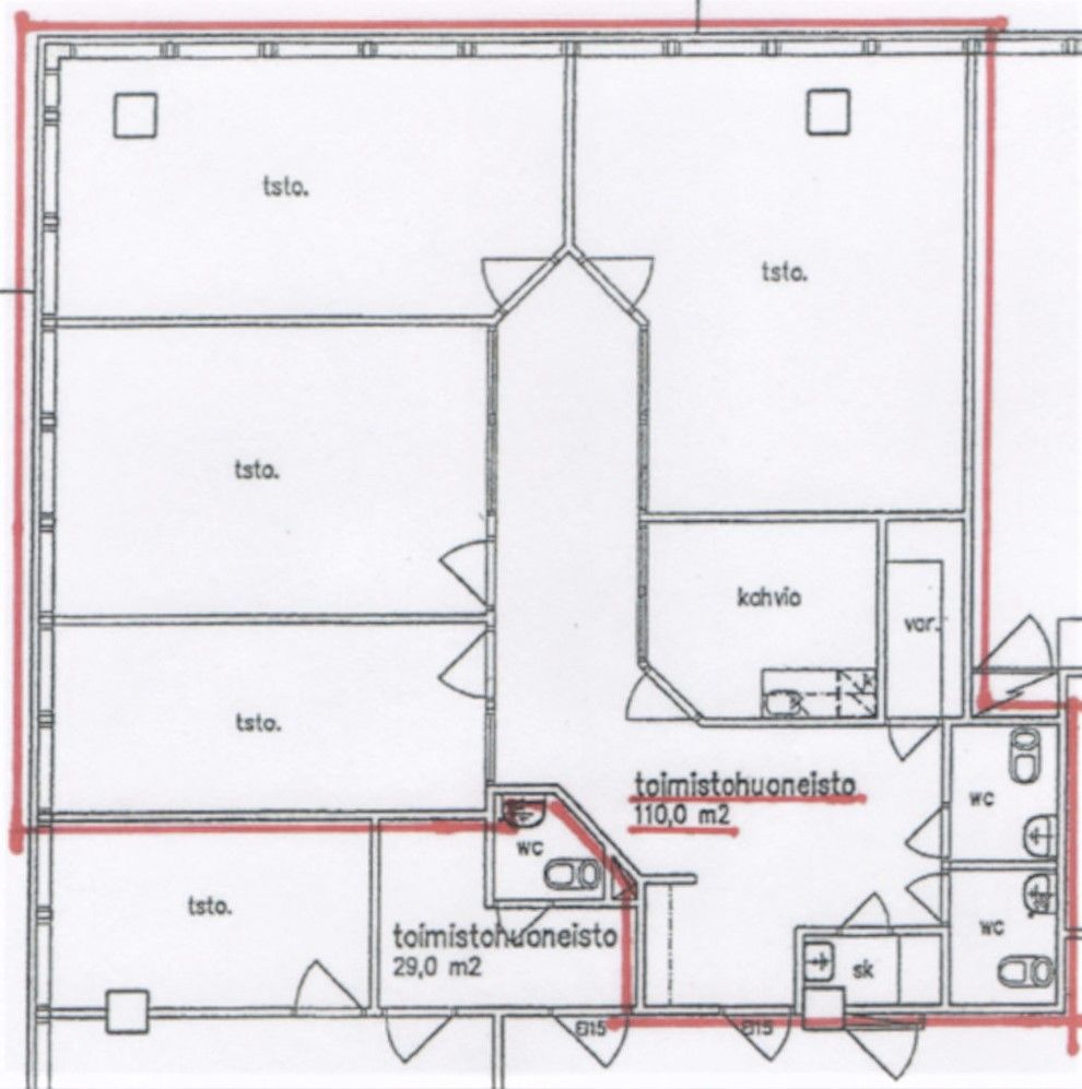
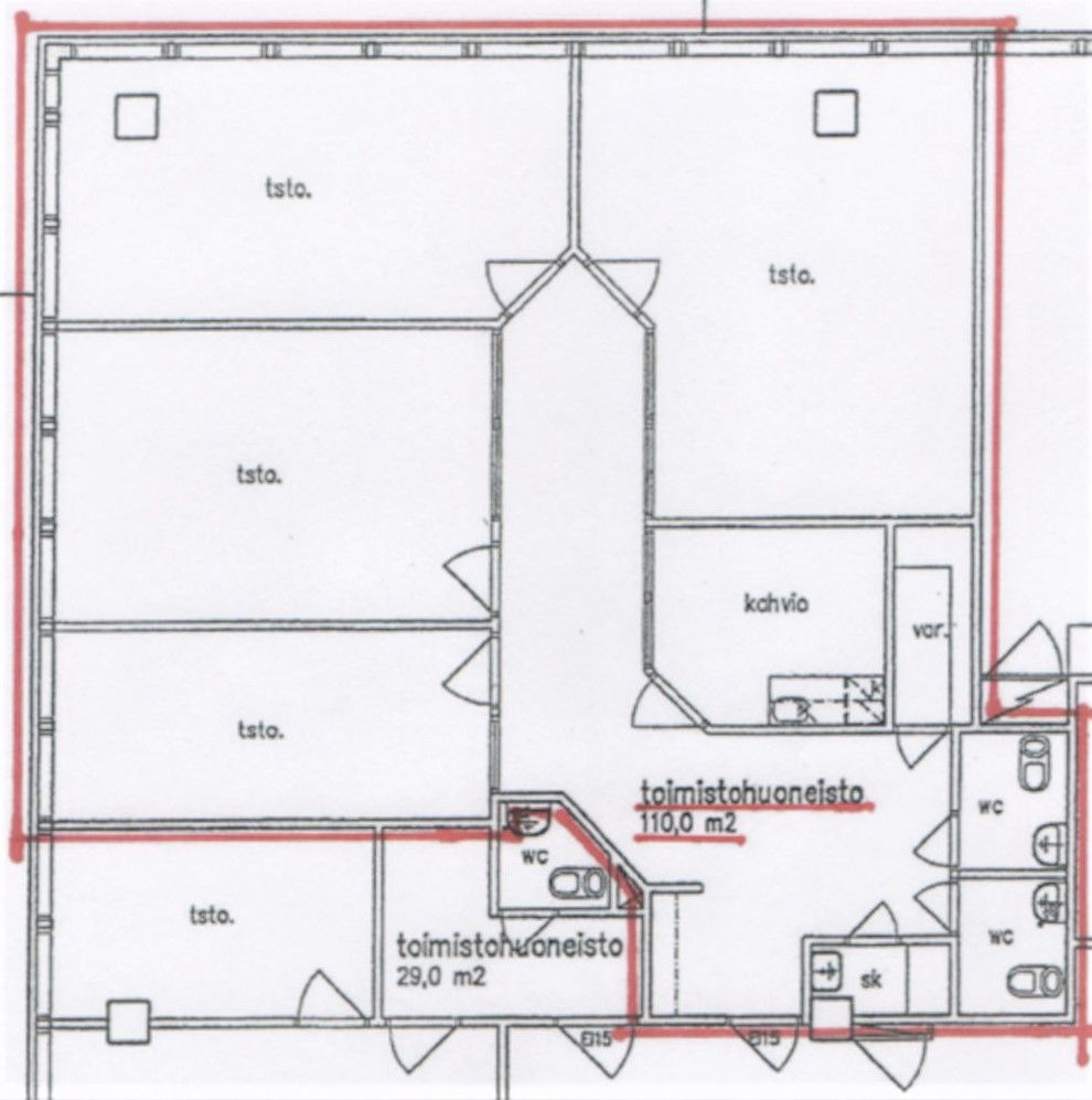
Vuokrattavana hyvä keskustan 2. krs toimistotila 4h+k+2 wc+ph yht. 110 m2.
Toimiva ratkaisu. Talossa hissi ja lämmin autohalli.
Vuokra sopimuksen mukaan. Kannattaa tutustua.
Osoite
Asemakatu 7, 24100 Salo
Vapautuu
Heti vapaa
Kerros
2
Ota yhteyttä
Pyydä lisätietoa
