Vuokrataan toimistotilat - Helsinki
Ruosilantie 14, Konala, 00390 Helsinki #10814981
Toisen kerroksen rauhallista toimistotilaa. Tilat tällä hetkellä jaettu huoneisiin, mahdollisuus muuntaa avotilaksi tarvittaessa.
Osoite
Ruosilantie 14, 00390 Helsinki
Tilatyyppi
Toimistotilaa
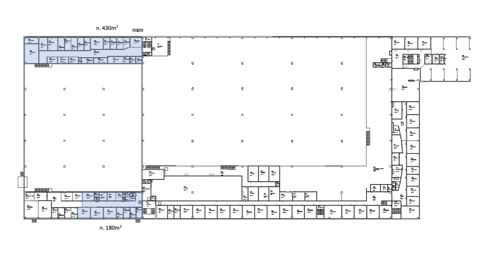
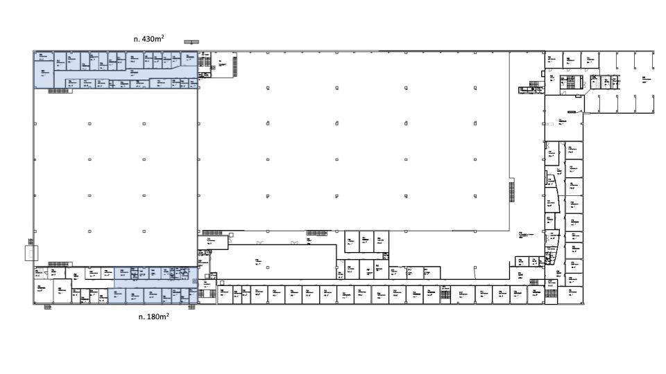
180 m2
Pohjapiirros
Kiinteistö
Ruosilantie 14 on vuonna 1971 rakennettu ja v.2000-2001 peruskorjattu varasto- ja toimistokiinteistö. Se sijaitsee loistavalla paikalla Konalassa sen ytimessä. Tilat ovat muunneltavissa moneen käyttötarkoitukseen. Kiinteistön aidatulla pihalla runsaasti parkkitilaa.
Kiinteistössä on lounasravintola, saunaosasto ja sosiaalitilat. Mahdollisuus vuokrata varastotilaa pohjakerroksen lastauslaiturin läheisyydestä.
Kiinteistö sijaitsee Vihdintien välittömässä läheisyydessä ja kehä I:n helposti saavutettavissa. Konalaan hyvät bussiyhteydet ja Malminkartanon juna-asema sijaitsee 1,3 km päässä.
Kiinteistössä on lounasravintola, saunaosasto ja sosiaalitilat. Mahdollisuus vuokrata varastotilaa pohjakerroksen lastauslaiturin läheisyydestä.
Kiinteistö sijaitsee Vihdintien välittömässä läheisyydessä ja kehä I:n helposti saavutettavissa. Konalaan hyvät bussiyhteydet ja Malminkartanon juna-asema sijaitsee 1,3 km päässä.
Vapautuu
Heti
Rakennusvuosi
1971
Saneerausvuosi
2001
Kerros
2
Energiatehokkuusluokka
Ei lain edellyttämää energiatodistusta
Ota yhteyttä
ScanReal Oy LKV
Opus Business Park
Hitsaajankatu 24
00810 Helsinki
info@scanreal.fi
Puh:
Näytä puhelinnumero
020 730 8830
Sopivat toimitilat yhdellä otolla!
Kartoitamme toimitilatarpeesi ja etsimme yrityksellesi parhaiten sopivat vapaat toimitilat. Koska vuokranantajat maksavat palvelumme, on tämä yrityksellesi veloituksetonta.
OTA YHTEYTTÄ - SOVI NÄYTTÖ!
Kaikki kohteemme eivät ole netissä, kerro tilatarpeesi niin kartoitamme vaihtoehdot.
Palvelumme on tilanhakijalle ilmainen
Pyydä lisätietoa
