Vuokrataan toimistotilat - Helsinki
Fredrikinkatu 47, Kamppi, 00100 Helsinki #10814940
Siistiä toimistotilaa loistavalla sijainnilla Helsingin keskustassa.
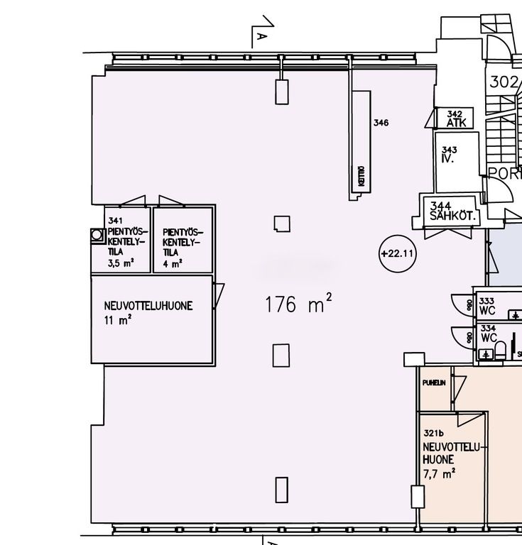
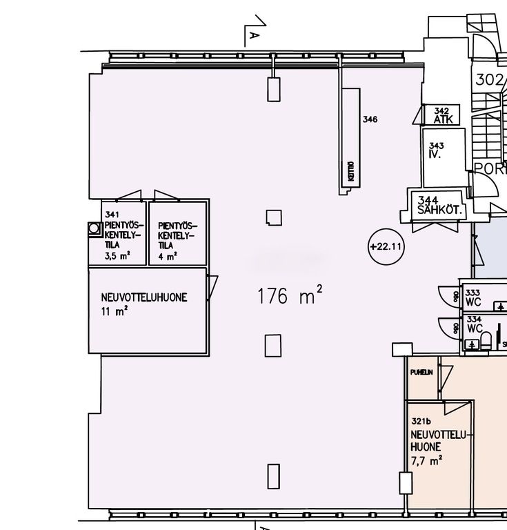
Kyseinen 176 m² toimisto sijaitsee kiinteistön 3. kerroksessa. Toimistossa on avotilaa, kaksi pientyöskentelytilaa, neuvotteluhuone sekä omat keittiö- ja wc-tilat.
Freda47 sijaitsee hyvällä paikalla Helsingin Kampissa, erinomaisten julkisten liikenneyhteyksien varrella. Kampin bussi- ja metroasema sijaitsevat lyhyen kävelymatkan päässä. Kaikki keskustan palvelut ovat aivan kivenheiton päässä. Kiinteistö on varustettu nykyaikaisella tekniikalla. Kaikissa tiloissa on koneellinen tulo- ja poistoilmanvaihto sekä viilennys. Varastotiloja on vuokrattavana kiinteistön kellarista. Kerroksiin on tavarahissiyhteys. Kiinteistössä on oma parkkihalli, jossa on myös lämpimiä pyöräpaikkoja. Lisää pyöräpaikkoja ja muutama autopaikka löytyy kiinteistön sisäpihalta. Kellarikerroksessa on suihku- ja pukuhuonetilat työmatkapyöräilijöitä varten. Aulasta löytyy Postin pakettiautomaatti. Kiinteistön katutasossa aloitti juuri uusi ravintolatoimija Fafa's. Lähistöllä on myös useita muita lounasravintoloita.
Kysy lisää numerosta 044 723 4700 tai info@bref.fi. Palvelumme on tilanhakijoille ilmainen.
Hissi
Bureau Real Estate Finland Oy
Lars Sonckin kaari 16, 02600 Espoo
Näytä puhelinnumero
0447234700
Bureau Real Estate Finland Oy
https://www.bref.fi