Vuokrataan varastotilat - Tampere
Joentaustankatu 3, 33330 Tampere #10814893
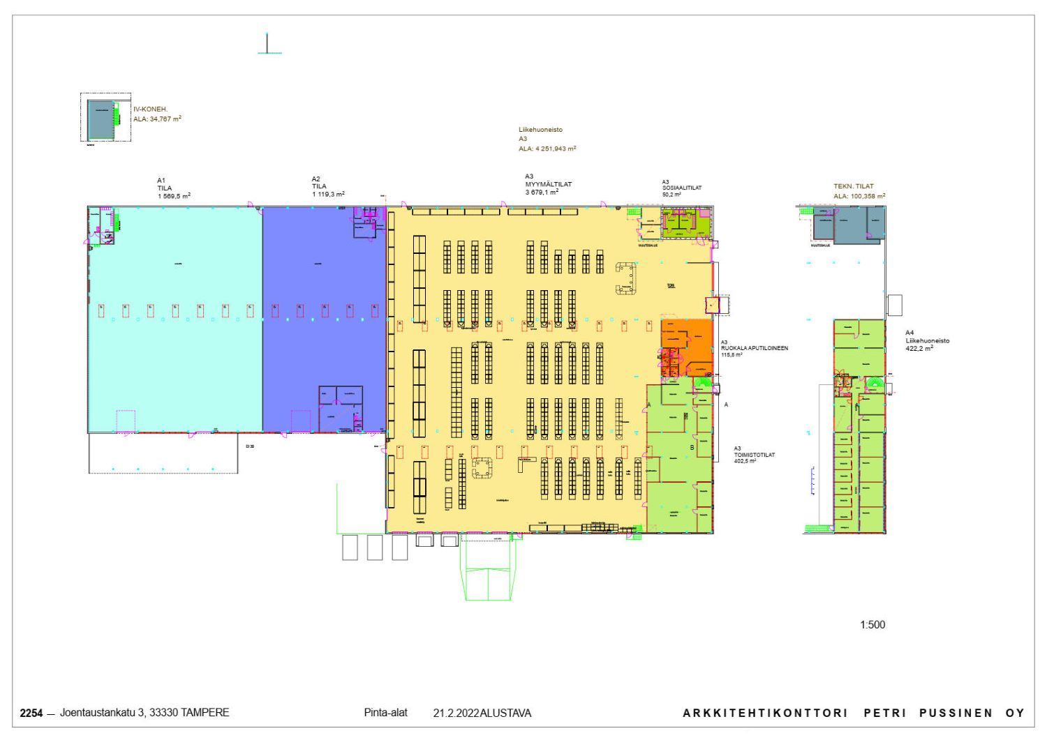
Moneen käyttöön soveltuvaa 2689 m² tuotanto-/varasto-/logistiikkatilaa vuokrattavana Tampereen Myllypurossa
Osoite
Joentaustankatu 3, 33330 Tampere
Tilatyyppi
Varastotilaa
2689 m2
Pohjapiirros
Kiinteistö
Noin 7 metriä korkeaa sisäänajettavaa hallitilaa suurella piha-alueella. Vapaa korkeus n. 5 m.
Tila on jaettavissa: 1569,5 m² ja 1119,5 m² (pohjakuvassa tilat A1 ja A2) kokonaisuuksiin.
Suuri tasainen piha-alue mahdollistaa isommankin rekan kääntymisen, hyvä yhteys kehätielle. Reilusti aidattua pihaa tarjolla ulkovarastointiin.
Lounaspaikkatarjontaa on alueella hyvin.
Tila on jaettavissa: 1569,5 m² ja 1119,5 m² (pohjakuvassa tilat A1 ja A2) kokonaisuuksiin.
Suuri tasainen piha-alue mahdollistaa isommankin rekan kääntymisen, hyvä yhteys kehätielle. Reilusti aidattua pihaa tarjolla ulkovarastointiin.
Lounaspaikkatarjontaa on alueella hyvin.
Vapautuu
Heti
Kerros
1
Energiatehokkuusluokka
Ei lain edellyttämää energiatodistusta
Katutasossa
Lastauslaituri
Ota yhteyttä
ScanReal Oy LKV
Opus Business Park
Hitsaajankatu 24
00810 Helsinki
info@scanreal.fi
Puh:
Näytä puhelinnumero
020 730 8830
Sopivat toimitilat yhdellä otolla!
Kartoitamme toimitilatarpeesi ja etsimme yrityksellesi parhaiten sopivat vapaat toimitilat. Koska vuokranantajat maksavat palvelumme, on tämä yrityksellesi veloituksetonta.
Palvelumme on tilanhakijalle ilmainen
Pyydä lisätietoa
