Vuokrataan toimistotilat, liiketilat, tuotantotilat, varastotilat - Hyvinkää
Hakakalliontie 7, 05460 Hyvinkää #10814888
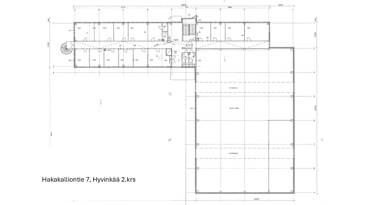
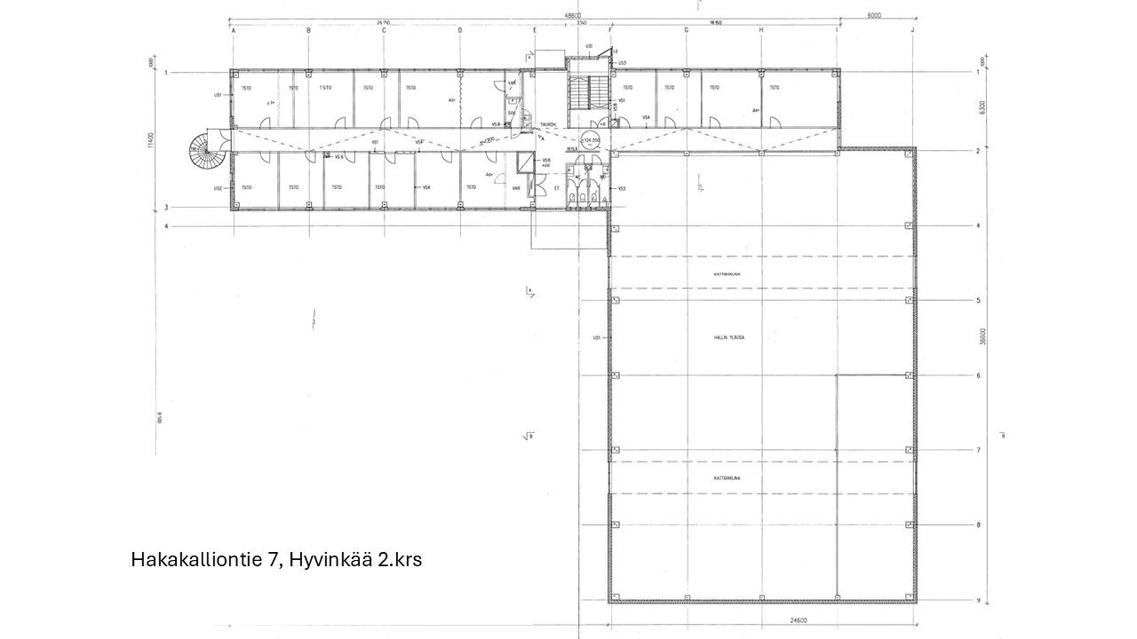
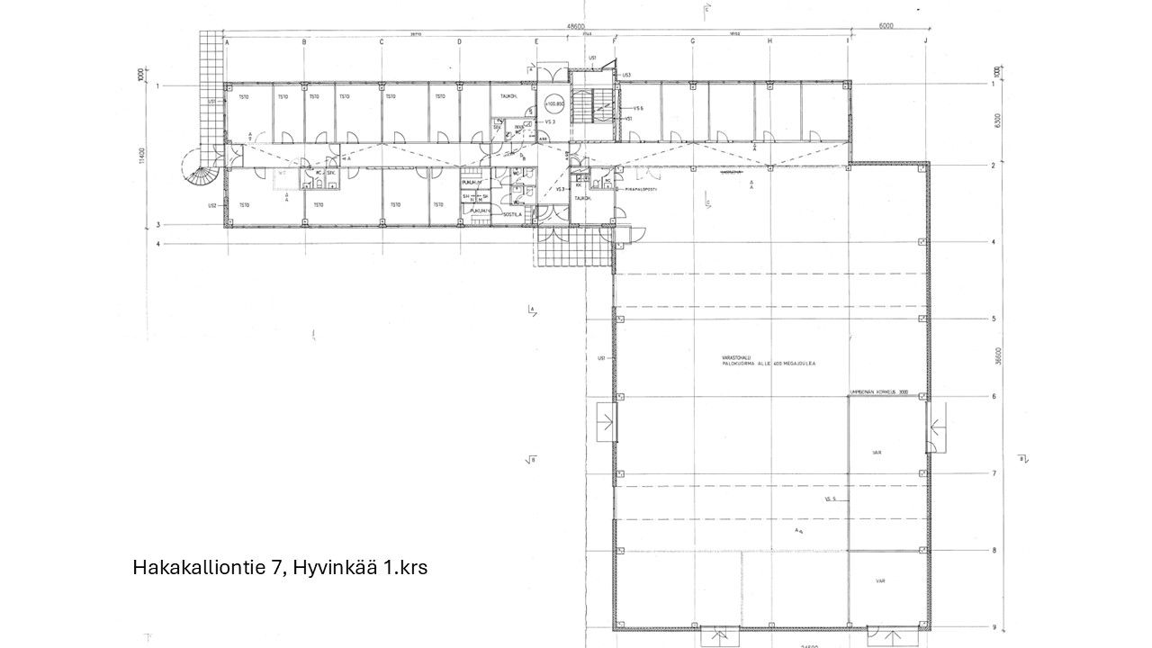
Kokonainen 1678 m² kiinteistö Hyvinkään Hakakalliossa
Osoite
Hakakalliontie 7, 05460 Hyvinkää
Tilatyyppi
Toimistotilaa
1678 m2
Liiketilaa
1678 m2
Tuotantotilaa
1678 m2
Varastotilaa
1678 m2
Yhteensä
1678 m2
Kiinteistö
Vapautumassa kokonainen kiinteistö, jossa on toimistotilaa sekä varasto-/myymälätilaa. Kiinteistössä on kaksi kerrosta. Tilat ovat olleet Onnisen myymälä- ja toimistokäytössä.
Hakakalliontie 7 sijaitsee Hyvinkään Hakakalliossa, lähellä lentokenttää. Kiinteistöllä on tilava piha-alue. Hyvinkään keskustan palvelut muutaman kilometrin päässä.
Hakakalliontie 7 sijaitsee Hyvinkään Hakakalliossa, lähellä lentokenttää. Kiinteistöllä on tilava piha-alue. Hyvinkään keskustan palvelut muutaman kilometrin päässä.
Vapautuu
Heti
Kerros
1-2
Energiatehokkuusluokka
Ei lain edellyttämää energiatodistusta
Ota yhteyttä
ScanReal Oy LKV
Opus Business Park
Hitsaajankatu 24
00810 Helsinki
info@scanreal.fi
Puh:
Näytä puhelinnumero
020 730 8830
Sopivat toimitilat yhdellä otolla!
Kartoitamme toimitilatarpeesi ja etsimme yrityksellesi parhaiten sopivat vapaat toimitilat. Koska vuokranantajat maksavat palvelumme, on tämä yrityksellesi veloituksetonta.
Palvelumme on tilanhakijalle ilmainen
Pyydä lisätietoa
