Vuokrataan toimistotilat, liiketilat - Espoo
Keilasatama 5, Keilaniemi, 02150 Espoo #10814884
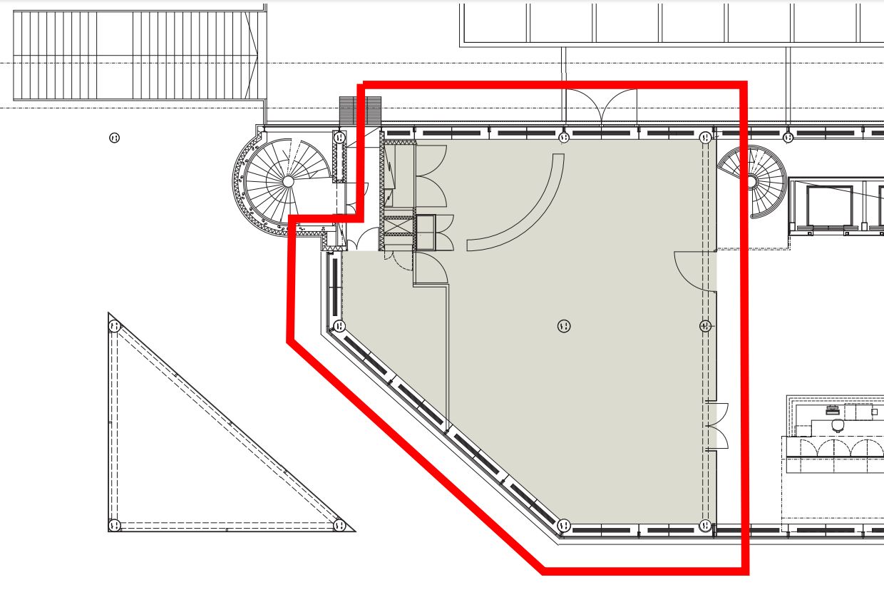
Vuokrattavana näyttävää, laadukasta ja jäähdytettyä liike-/toimistotilaa.
Osoite
Keilasatama 5, 02150 Espoo
Tilatyyppi
Toimistotilaa
157 m2
Liiketilaa
157 m2
Yhteensä
157 m2
Kiinteistö
Vuokrattavana näyttävää, laadukasta ja jäähdytettyä liike-/toimistotilaa.
Sijainti
Keilaniemi, Espoo
Pysäköinti
Autohalli ja pihapaikat.
Palvelut
-Aulapalvelut
-Lounasravintola
-Vuokrattavia neuvottelu- ja kokoustiloja
-Kuntosali
-Saunaosasto
-Lounasravintola
-Vuokrattavia neuvottelu- ja kokoustiloja
-Kuntosali
-Saunaosasto
Kulkuyhteydet
-Metro
-Bussi
-Juna
-Oma auto
-Bussi
-Juna
-Oma auto
Vapautuu
Heti
Kerros
1
Energiatehokkuusluokka
Ei lain edellyttämää energiatodistusta
Näkyvällä paikalla
Hissi
Ota yhteyttä
REALIUM OY LKV
Tammasaarenkatu 1, 00180 Helsinki
Vaihde:
Näytä puhelinnumero
010 326 346
Tuomo Mäkelä
tuomo.makela@realium.fi
p.
Näytä puhelinnumero
044 050 1158
Joel Keto
joel.keto@realium.fi
p.
Näytä puhelinnumero
045 317 0330
KAIKKI TILAVAIHTOEHDOT KERRALLA!
SOITA - MEILAA JA TILAA NÄYTTÖ!
Ilmainen palvelu tilanhakijoille.
Kartoitamme parhaat tilavaihtoehdot.
Kaikki kohteet eivät ole netissä.
Pyydä lisätietoa
