Vuokrataan toimistotilat - Helsinki
Kasarmikatu 44, Kaartinkaupunki, 00130 Helsinki #10814873
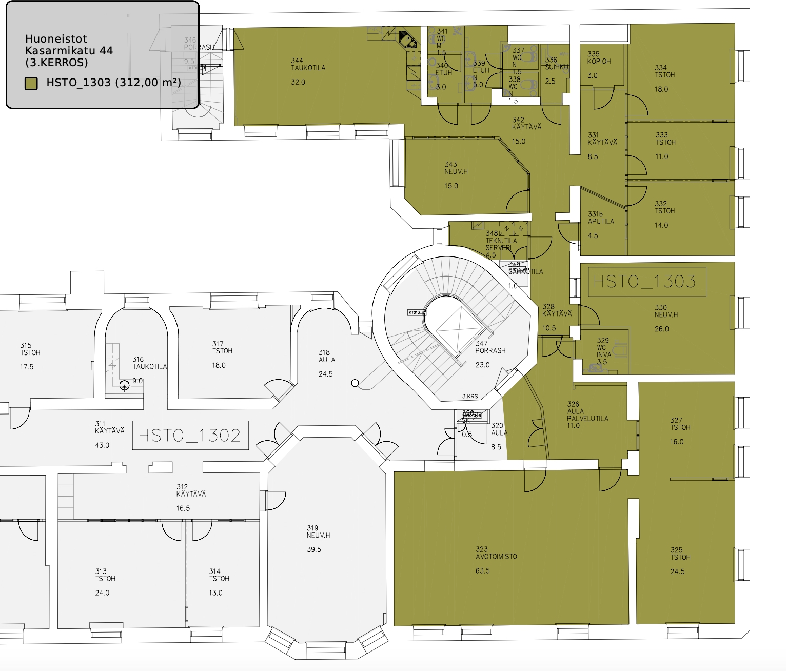
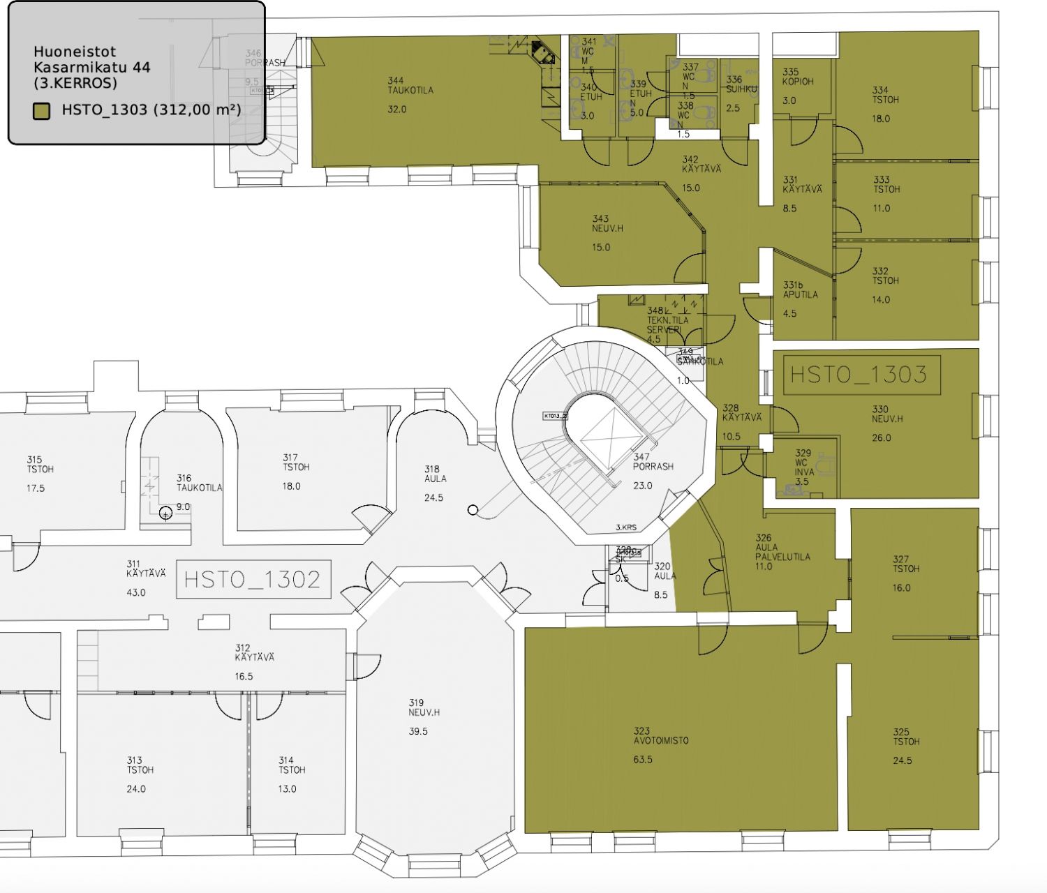
Tehokas, remontoitu 312 m² kombitoimisto Kasarmikadun ja Rikhardinkadun kulmassa Esplanadin puiston kupeessa.
Osoite
Kasarmikatu 44, 00130 Helsinki
Tilatyyppi
Toimistotilaa
312 m2
Pohjapiirros
Kiinteistö
Remontoitu 3. kerroksen toimitila Esplanadin puiston kupeessa. Tilassa avotilaa ja toimistohuoneita sekä suihku- ja wc-tilat.
Kohteessa on pääasiassa toimistotilaa sekä muutama kivijalassa sijaitseva liiketila. Alakerrassa sijaitsee ravintola ja lähettyviltä löytyy lukuisia keskustan lounasravintoloita sekä muita palveluita helpottamaan yrityksen arkea. Keskeisen sijainnin vuoksi kiinteistöön on hyvät kulkuyhteydet ja autoileville löytyy lähistöllä sijaitsevasta Kasarmintorin pysäköintihallista paikkoja.
Metroasema 700 m, Raitiovaunupysäkki 400 m, Bussipysäkki 300 m, Juna-asema 800 m, Lentoasema 20 km
Kohteessa on pääasiassa toimistotilaa sekä muutama kivijalassa sijaitseva liiketila. Alakerrassa sijaitsee ravintola ja lähettyviltä löytyy lukuisia keskustan lounasravintoloita sekä muita palveluita helpottamaan yrityksen arkea. Keskeisen sijainnin vuoksi kiinteistöön on hyvät kulkuyhteydet ja autoileville löytyy lähistöllä sijaitsevasta Kasarmintorin pysäköintihallista paikkoja.
Metroasema 700 m, Raitiovaunupysäkki 400 m, Bussipysäkki 300 m, Juna-asema 800 m, Lentoasema 20 km
Vapautuu
Heti
Kerros
3 / 6
Energiatehokkuusluokka
Ei lain edellyttämää energiatodistusta
Näkyvällä paikalla
Hissi
Ota yhteyttä
ScanReal Oy LKV
Opus Business Park
Hitsaajankatu 24
00810 Helsinki
info@scanreal.fi
Puh:
Näytä puhelinnumero
020 730 8830
Sopivat toimitilat yhdellä otolla!
Kartoitamme toimitilatarpeesi ja etsimme yrityksellesi parhaiten sopivat vapaat toimitilat. Koska vuokranantajat maksavat palvelumme, on tämä yrityksellesi veloituksetonta.
OTA YHTEYTTÄ - SOVI NÄYTTÖ!
Kaikki kohteemme eivät ole netissä, kerro tilatarpeesi niin kartoitamme vaihtoehdot.
Palvelumme on tilanhakijalle ilmainen
Pyydä lisätietoa
