Vuokrataan toimistotilat - Helsinki
Pohjoinen Rautatiekatu 25, Kamppi, 00101 Helsinki #10814864
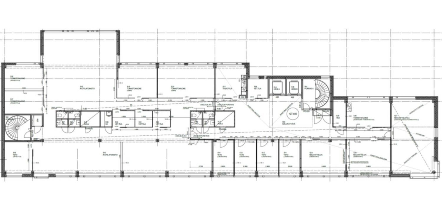
Vuokrattavana 5. kerroksen valoisaa, modernia ja laadukasta toimistotilaa.
Osoite
Pohjoinen Rautatiekatu 25, 00101 Helsinki
Tilatyyppi
Toimistotilaa
636 m2
Kiinteistö
Vuokrattavana 5. kerroksen valoisaa, modernia ja laadukasta toimistotilaa. Tila on helposti muokattavissa. Ensimmäisen kerroksen neuvottelu- ja kokoustilat ovat kaikkien vuokralaisten yhteiskäytössä.
Sijainti
Kamppi, Helsinki
Pysäköinti
Kellarikerroksessa parkkihalli.
Palvelut
-Aulapalvelut
-Sosiaalitilat
-Vuokrattavat neuvottelutilat
-Sosiaalitilat
-Vuokrattavat neuvottelutilat
Kulkuyhteydet
-Metro
-Bussi
-Oma auto
-Bussi
-Oma auto
Vapautuu
Heti
Kerros
5 / 8
Energiatehokkuusluokka
Ei lain edellyttämää energiatodistusta
Näkyvällä paikalla
Hissi
Ota yhteyttä
REALIUM OY LKV
Tammasaarenkatu 1, 00180 Helsinki
Vaihde:
Näytä puhelinnumero
010 326 346
Tuomo Mäkelä
tuomo.makela@realium.fi
p.
Näytä puhelinnumero
044 050 1158
Joel Keto
joel.keto@realium.fi
p.
Näytä puhelinnumero
045 317 0330
KAIKKI TILAVAIHTOEHDOT KERRALLA!
SOITA - MEILAA JA TILAA NÄYTTÖ!
Ilmainen palvelu tilanhakijoille.
Kartoitamme parhaat tilavaihtoehdot.
Kaikki kohteet eivät ole netissä.
Pyydä lisätietoa
