Vuokrataan varastotilat - Espoo
Finnoonniitty 7, Suomenoja, 02270 Espoo #10814799
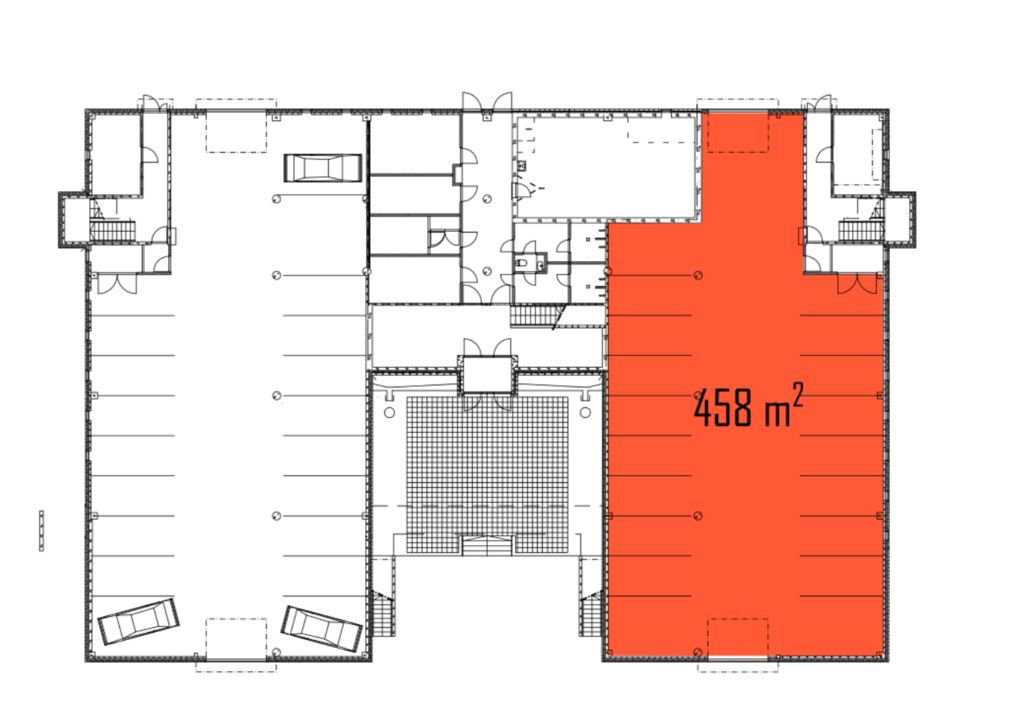
Varastotilaa Espoon Suomenojalla.
Tämä 458m2 varastotila sijaitsee kiinteistön katutasossa, ja se on läpiajettava. Tilan molemmissa päädyissä on 3,60m x 2,40m kokoinen nosto-ovi. Varasto ei sovellu autopesulaksi. Kiinteistöstä on mahdollista vuokrata myös toimistotilaa.
Finnoonniitty 7 on monipuolinen toimitilakiinteistö, joka on rakennettu 1990-luvulla IT-yrityksen pääkonttoriksi. Kiinteistön tilat soveltuvat niin toimistokäyttöön, varasto-, kokoonpano- kuin testaustiloiksi. Rakennuksia on kaksi, jotka on kytketty toisiinsa kulkusilloilla. Toisessa rakennuksessa on lastauslaituri ja tavarahissi, jonka kantavuus on 1600kg. Kiinteistön tekniikka on nykyaikainen ja toimistot ovat jäähdytettyjä. Varastotilojen korkeus on 2,6-3,7 metriä. Pysäköintitilaa löytyy runsaasti kolmesta erillisestä pysäköintihallista.
Kysy lisää numerosta 044 723 4700 tai info@bref.fi. Palvelumme on tilanhakijoille ilmainen.
Hissi
Bureau Real Estate Finland Oy
Lars Sonckin kaari 16, 02600 Espoo
Näytä puhelinnumero
0447234700
Bureau Real Estate Finland Oy
https://www.bref.fi