Vuokrataan tuotantotilat - Orimattila
Kaitilantie 30, Jokela, 16300 Orimattila #10814798
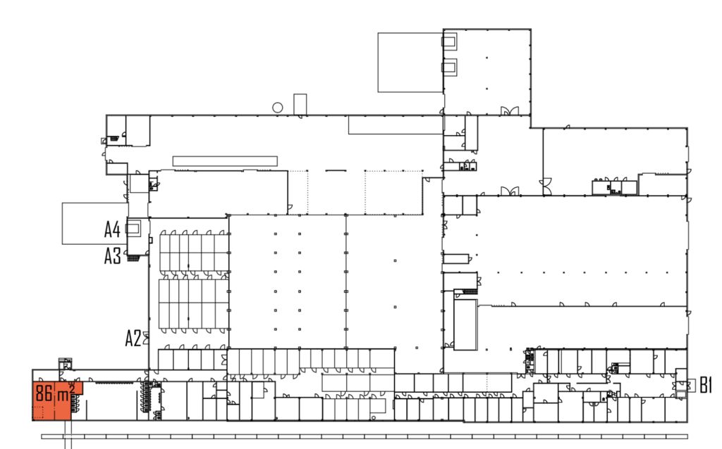
Varastoksi ja tuotantoon soveltuvaa tilaa Orimattilassa.
Tämä 86 m² tuotantotila sijaitsee kiinteistön katutasossa. Tila on korkeudeltaan kaksiosainen. Korkea osa nosto-oven kohdalla on 3,9 m korkeaa. 5 metrin päässä nosto-ovesta alkaa matala osa, jonka korkeus on 2,3 m. Matalan ja korkean osan välissä on 2 m korkeudelle katosta laskeutuva väliseinä. Nosto-oven koko: leveys 260 cm, korkeus 250 cm. Nosto-oven alareuna on lattiatasolla eli n. 35 cm pihaa ylempänä.
Kaitilan vaatetehtaana tunnettu kiinteistö sijaitsee Orimattilassa, tunnin ajomatkan päässä Helsingistä ja 15 minuutin ajomatkan päässä Lahdesta. Teollisuuskiinteistössä on tuotanto- ja varastotilaa, lastauslaituri ja sisäänajomahdollisuus. Kiinteistön kokonaispinta-ala on 10 000 m2. Rakennuksessa on sprinklerijärjestelmä ja piha-alue on asfaltoitu.
Kysy lisää numerosta 044 723 4700 tai info@bref.fi. Palvelumme on tilanhakijoille ilmainen.
Bureau Real Estate Finland Oy
Lars Sonckin kaari 16, 02600 Espoo
Näytä puhelinnumero
0447234700
Bureau Real Estate Finland Oy
https://www.bref.fi