Vuokrataan toimistotilat - Helsinki
Kalevankatu 18, Kamppi, 00100 Helsinki #10814783
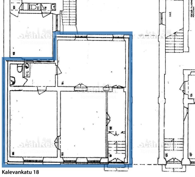
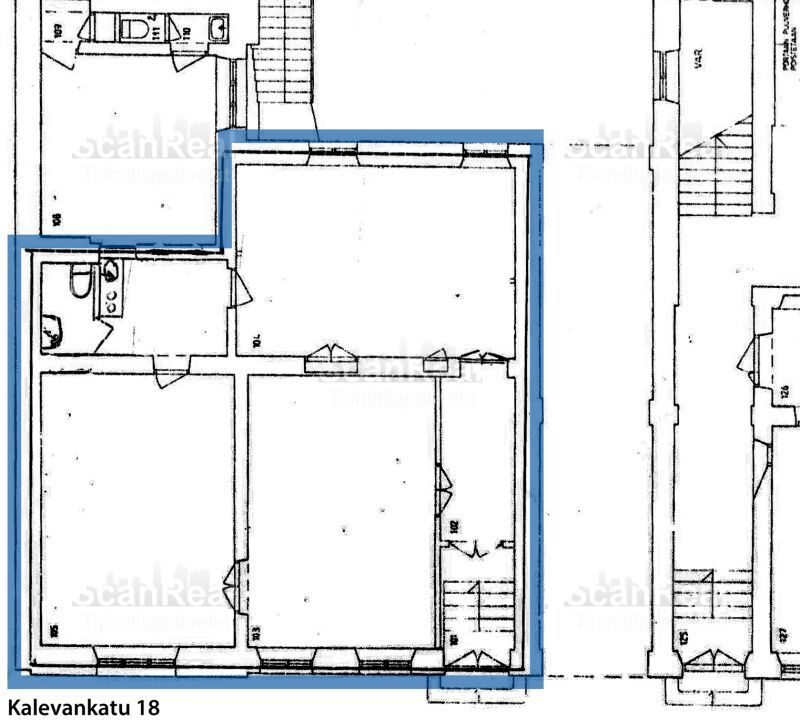
Siisti katutason 120 m² toimistotila arvokiinteistössä, hyvällä sijainnilla Helsingin keskustassa.
Osoite
Kalevankatu 18, 00100 Helsinki
Tilatyyppi
Toimistotilaa
120 m2
Pohjapiirros
Vuokra
3360 € / kk
Kiinteistö
Siisti katutason toimistotila arvokiinteistössä, hyvällä sijainnilla Helsingin keskustassa.
- Kampin ja keskustan palvelut lyhyen kävelymatkan päässä
- Vuokrataan myös alv 0%-käyttöön (yhdistykset jne.)
- Kampin ja keskustan palvelut lyhyen kävelymatkan päässä
- Vuokrataan myös alv 0%-käyttöön (yhdistykset jne.)
Kulkuyhteydet
Metroasema 500 m, Raitiovaunupysäkki 400 m, Bussipysäkki 200 m, Juna-asema 700 m, Lentoasema 19,7 km
Muuta
Ei lain edellyttämää energiatodistusta
Vapautuu
Heti
Kerros
1
Energiatehokkuusluokka
Ei lain edellyttämää energiatodistusta
Katutasossa
Hissi
Ota yhteyttä
ScanReal Oy LKV
Opus Business Park
Hitsaajankatu 24
00810 Helsinki
info@scanreal.fi
Puh:
Näytä puhelinnumero
020 730 8830
Sopivat toimitilat yhdellä otolla!
Kartoitamme toimitilatarpeesi ja etsimme yrityksellesi parhaiten sopivat vapaat toimitilat. Koska vuokranantajat maksavat palvelumme, on tämä yrityksellesi veloituksetonta.
OTA YHTEYTTÄ - SOVI NÄYTTÖ!
Kaikki kohteemme eivät ole netissä, kerro tilatarpeesi niin kartoitamme vaihtoehdot.
Palvelumme on tilanhakijalle ilmainen
Pyydä lisätietoa
