Vuokrataan tuotantotilat, muut tilat - Jyväskylä
Konttisentie 8, 40800 Jyväskylä #10814780
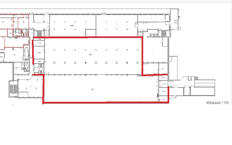
Vuokrataan Vaajakosken Teollisuustalosta n. 2570 m2 varasto- / tuotantotila. Tilaan kuuluu n. 2149 m2 kokoisen hallitilan lisäksi kaksi pienempää, n. 63 m2- ja 209 m2-kokoiset, esimerkiksi varastointiin sopivat tilat.
Tällä hetkellä tila on kartinghalli-käytössä. Tilaa on mahdollista muokata käyttäjän tarpeiden mukaan. Hallitilan vapaa korkeus n. 6-7m.
Lisätiedot ja näytöt: Henri Kumpulainen, Puh. 040 864 3631, s-posti: henri.kumpulainen@aveon.fi
Aveon Real Estate Oy
Kauppakatu 18 C 26, 40100 Jyväskylä
Henri Kumpulainen
Puh.
Näytä puhelinnumero
040 864 3631
henri.kumpulainen@aveon.fi
Olemme kiinteistöliiketoiminnan asiantuntija, joka toimii yrittäjämäisesti neuvonantajana kiinteistökaupoissa, toimitilavälittämisessä sekä kiinteistökehityksessä.
Asiakkaitamme ovat kotimaiset ja ulkomaiset kiinteistönomistajat, -sijoittajat sekä tilojen käyttäjät kaikkialla Suomessa.
