Myydään tuotantotilat - Hyvinkää
Avainkierto 5, Veikkari, 05840 Hyvinkää #10814775
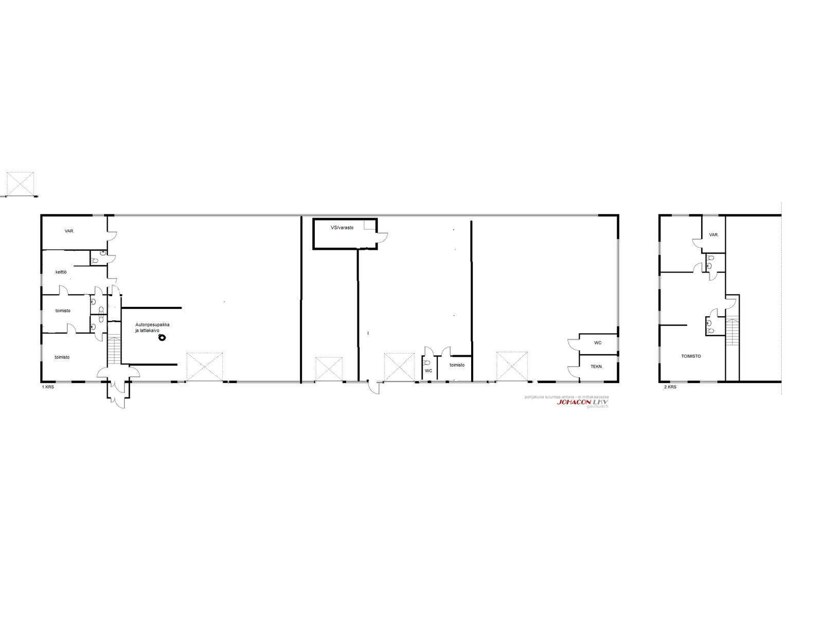
Myydään noin 1000 m2 siisti halli 4563 m2 tontilla lähellä Helsinki-Tampere moottoritietä. Hallin ulkomitat noin 15 m x 60 m. Halli eroteltu neljäksi eri tuotantotilaksi sekä toisen kerroksen erilliseksi liike/toimistotilaksi, joissa erilliset sähkö- ja vesimittaukset.
Halli 1) Toimisto- ja tuotantotilat, yhteensä noin 300 m2. Nosto-ovi, korkeus 4 m x leveys 4,5 m. Hallitila noin 15 m x 18 m. Hallissa autonpesupaikka, öljynerotuskaivo, voimavirta, wc. Erilliset toimisto-, wc- ja taukotilat.
Halli 2) Pienempi työtila, noin 90 m2, korkeus 5,2 m. Nosto-ovi 3 m x 3 m. Voimavirta. Yläparvi varastointiin.
Halli 3) Hallitila, noin 180 m2, toimistohuone noin 10 m2 sekä wc-tilat, jossa myös suihkuvaraus. Väestönsuoja 20 henkilölle, voi käyttää varastona. Nosto-ovi korkeus 4 m x leveys 4,5 m.
Halli 4) Noin 15 m x 12 m. Nosto-ovi korkeus 4 m x 4,5 m. Voimavirta.
5) Toimistotila 2. kerros) Kaksi toimistohuonetta, 2 wc sekä neuvotteluhuone.
Kolme tiloista vuokrattuna, kaksi vapaana/omassa käytössä. Vuokralainen maksaa kulut, erilliset vesimittarit, sähkömaksut vuokralaisen oman sopimuksen ja kulutuksen mukaan.
Lisätiedot:
Jussi Hannukkala
0400 363 025
jussi.hannukkala@johacon.fi

Johacon LKV
Riihimäenkatu 2
05900 HYVINKÄÄ
Näytä puhelinnumero
0400 353 920
Hannukkala Jussi
Yrittäjä, LKV
Näytä puhelinnumero
0400363025