Vuokrataan toimistotilat - Tampere
Hatanpään Valtatie 11, Hatanpää, 33100 Tampere #10814615
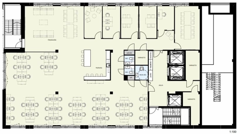
Tämä kahdessa kerroksessa sijaitseva toimisto tarjoaa yhteensä 908 m² tilaa, joka voidaan vuokrata joko yhdessä tai erikseen. Molemmat kerrokset ovat avaria ja muokattavissa joustavasti yrityksesi tarpeiden mukaan. Upeat näkymät ja korkealaatuiset tilaratkaisut tekevät tästä tilasta houkuttelevan vaihtoehdon suuremmille organisaatioillekkin.
Ratinankaaren toimistotalo tarjoaa kattavat palvelut yrityksille. Kiinteistössä on muun muassa aulapalvelut, lounasravintola, neuvottelutilat sekä pyöräparkki. Lisäksi vuokrattavissa on autopaikkoja ja sähköauton latauspaikkoja. Rakennus on saanut LEED Gold -ympäristösertifikaatin, joka takaa kestävät ja energiatehokkaat tilaratkaisut.
Kiinteistön sijainti on erinomainen: se on kävelymatkan päässä Tampereen keskustasta ja lähellä monia palveluja. Hyvät liikenneyhteydet tekevät paikalle saapumisesta helppoa ja sujuvaa.
Me Croisettella autamme teitä löytämään teille parhaat tilat! Olemme puolueettomia asiantuntijoita ja tunnemme toimitilamarkkinat, talot sekä tilat vankalla kokemuksella. Meillä on välityksessä kaikki toimitilat ja tiedämme niiden alustavat vuokratasot.
Tehtävämme on tehdä toimitilahaustanne onnistunut ja helppo. Saamme palkkiomme kiinteistönomistajalta, joten sinulle palvelumme on täysin maksuton.
Hissi
Croisette Real Estate Partner
Erottajankatu 5 A 6, 00130 Helsinki
Näytä puhelinnumero
+358 400 585 857
Jenni Lampinen
Näytä puhelinnumero
+358405287396
