Vuokrataan toimistotilat - Helsinki
Pohjoinen Rautatiekatu 25, Kamppi, 00100 Helsinki #10814556
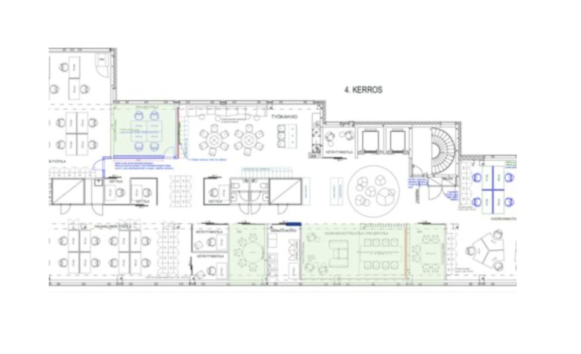
Vuokrataan toimistotilaa 4.krs 636m2.
Kevan omistama moderni ja laadukas vuonna 1999 valmistunut toimistokiinteistö sijaitsee keskeisellä paikalla Helsingin keskustassa. Tekniikaltaan talo on uudenveroinen ja se tarjoaa viihtyisät työtilat 200−300 henkilölle.
Valoisassa ja viihtyisässä rakennuksessa on seitsemän maanpäällistä toimistokerrosta, saunaosasto ullakkokerroksessa, kaksi kellarikerrosta, joissa on runsaasti varastotilaa sekä pysäköintihalli 15 autolle. Ensimmäisen kerroksen neuvottelu- ja kokoustilat voidaan tarvittaessa muuntaa asiakaspalvelukäyttöön.
Kiinteistön sijainti metron ja Kampin bussiterminaalin tuntumassa, pyöräilyn pääväylä Baanan varrella, on erinomainen.
Vuokrattavana neljännestä kerroksesta toimistotilaa 638 m2.
Lisätietoja numerosta 020 7290 710. Lisää kohteita osoitteessa premises.fi.
Kohteella ei ole lain edellyttämää energiatodistusta.Kerros: 4
CRE PREMISES
Puh. Näytä puhelinnumero 020 7290 710
Vantaankoskentie 14
01670 VANTAA
