Vuokrataan - Tampere
Joentaustankatu 3, Tampere #10814542
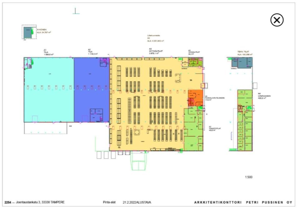
Tampereen Myllypurossa vuokrattavissa tuotanto-, logistiikka- tai varastokäyttöön kelpaavaa tilaa. Tila on laajennettavissa.
Pohjakuvassa tila on A2 1119,5 m2 ja laajennettavissa A1 1569 m2.
Vapaa korkeus n. 5-7m. Suuri tasainen piha-alue mahdollistaa rekan kääntymisen tai isommankin ulkovarastoinnin.
Lisätiedot: 045 610 2752 tai mikko.wallgren@rhg.fi
Lisää kohteita www.rhg.fi
Osoite
Joentaustankatu 3, Tampere
Vapautuu
Kysy
Huoneiden lukumäärä
1
Energiatehokkuusluokka
Ei lain edellyttämää energiatodistusta
Ota yhteyttä
RHG Real Estate
Hämeenkatu 2 B20, 20500 Turku
Näytä puhelinnumero
020 734 4020
Mikko Wallgren
Työntekijä
Näytä puhelinnumero
045 6102 752
Pyydä lisätietoa
